The project addresses a challenge shared across Europe: how can we intervene in a complex urban fabric while preserving the histories of its inhabitants and the material traces that shape it? How can one act in an "acupunctural" manner—revitalizing the city without total demolition, without starting from scratch
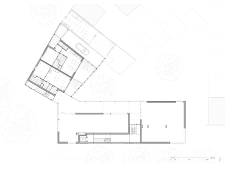
REVITALIZATION — The original garden city concept—where individual gardens connect to a central, shared green space—has largely been lost along Tuighuisstraat in Kortrijk. Many gardens have been transformed into garage boxes or enclosed rear extensions. A continuous line of garage doors forms a belt around an asphalted access road, enclosing a patch of residual greenery at its centre.
This configuration disrupts connections: between houses and the central space, between neighbours, and between (grand)parents and playing children. The project reverses this perspective. Rear façades become new fronts, and the interior of the block is transformed into a shared meeting space. Through participation and material reuse, the memory of the place and everyday life are woven into the architecture.
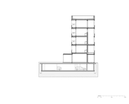
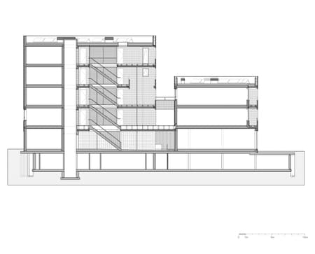
DENSIFICATION — Of the 54 plots in the neighbourhood, 18 belong to the public housing company. Seven plots are consolidated into three volumes, increasing density from 16 to 31 housing units. A diversity of housing typologies is introduced, alongside collective ground-floor spaces that encourage encounters, interaction, and community life.
COHABITATION — Demographic change, migration patterns, and the exclusion of vulnerable populations are pressing urban challenges. This project addresses them through strategic urban integration and a mix of housing typologies that foster inclusion and resilience. The "kangaroo housing" concept enables adaptable living arrangements capable of responding to evolving family structures and demographic dynamics. Shared infrastructures promote social interaction and help mitigate isolation, supporting socioeconomic diversity and long-term community stability.
At the everyday scale, the project responds to transformations in family structures. The rise of recomposed families, hybrid work–home models, and fluctuating life trajectories calls for flexible housing solutions that can expand or contract without requiring relocation. The dwellings offer contemporary, adaptable layouts: intergenerational living, home-office spaces, multigenerational households, and solutions for blended families. This approach revitalises both the housing and the urban environment by activating the central block space, enhancing social safety, and strengthening the connection between the home and the public realm.
REUSE — The original bricks and roof tiles—more than a hundred years old—were reused on site within a circular construction strategy. All recovered materials were tested to ensure quality. Bricks that did not meet the structural requirements for façade applications were reused in gabions as property boundaries, with the support of a sheltered workshop. To ensure that bricks in the new construction can be reused at the end of their life cycle, a hybrid mortar was selected after testing various compositions.
































