In the heart of the Salento region countryside, in an area known for oil production and sheep rearing, Margine (www.margine.net) completes "Casa Ulìa” (Olive House in Salento dialect) a Mediterranean-style detached residence designed for a young couple – he a building contractor and she a professor – who wanted an oasis of peace, equipped with all comforts, just a few kilometers from Lecce.
“Nestled among centuries-old olive trees – hence the name Ulìa – the residence stands out against the rural setting with its sculptural white volume and inter-carved large windows that seamlessly connect the interiors with the surrounding landscape. The local Leccese stone adopted for the exterior paving, elevations and gelosie (stone screen) that gently filter natural light into the interiors, echoes the region's vernacular tradition.” – explain architects Giulio Ciccarese and Valentina Pontieri.
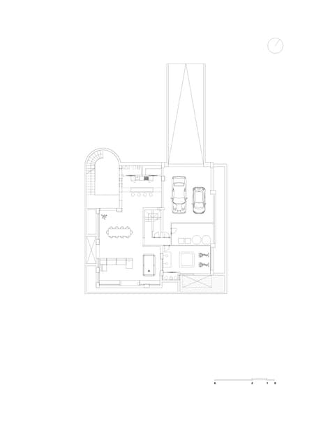
Discreetly, as if hiding behind centuries-old olive trees, Casa Ulìa leverages an underground space to maintain a purely horizontal development on two levels. The ground floor houses the living area, revealing an open, spacious and bright space, while the basement, lit by two lowered patios, encompasses a room for private events, a spa, the garage and a technical room.
The living area is lined with two oak paneling panels. The first, in planking, houses the TV wall, behind which is a study and bathroom, while the other, along with the island, defines the kitchen area. A glass window etched into the paneling, framing the landscape, giving the feeling of cooking in plein air. Wide passages from the living area to the garden, revealed through large panoramic windows, lead to a pergola that screens the outdoor veranda, creating the ideal setting for outdoor dining in Summer.
A large central fireplace, the beating heart of the villa, unites the dining and living areas, completing the living room by enveloping guests in a cozy and convivial atmosphere. The passage to the sleeping area leads through a hallway equipped with an elegant built-in closet to reveal the master bedroom, which, like the living area, is distinguished by two paneling panels. The first, acts as the headboard of the bed integrating a shelf/bedside table; the second, discreetly conceals the walk-in closet, elegantly framing the dresser and giving the room a touch of intimacy.
Internally, the house stands out for its essential lines and refined use of materials, with white plaster and stone-effect stoneware floors that also cover the bathroom. The use of large formats brings continuity to the surfaces, fueling the overall minimalism of the design.
The joinery, custom-designed by the studio and made by local artisans, features oak paneling with a light honey stain that warms the interior spaces.
Bespoke furnishings, such as Artnova's Curve sofa, Devina Nais' M3 table and Midj's Lea chairs, blend harmoniously with the strongly textured palette of the interiors.
The house, while respecting materials and construction techniques typical of rural Salento buildings, has highly advanced energy efficiency and technological integration goals. With heating and cooling systems controlled by a heat pump powered by a photovoltaic system with storage batteries, the dwelling reduces consumption and produces all the energy required for its operation from renewable sources, meeting the European Directives of "NZEB" (nearly zero energy) building.
With Casa Ulìa, Margine blends local tradition and contemporary solutions to create a minimalist retreat that invites the Salento countryside, the true star of the project, inside. A thoughtful dwelling that respects the context and reinterprets the concept of vernacular architecture in a fresh way.
































