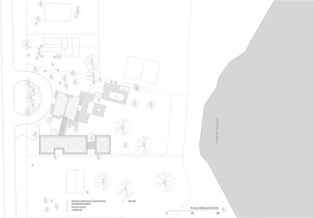
Built in 1811 on the banks of the Rivière des Mille Îles, the Aubé house is a patriot's home nestled in the heart of a vast garden, a remnant of former farmland. Inhabited by the same family for generations, this site has become, over time, the stage for a multigenerational architectural and human story. Faced with evolving uses and the accumulation of ad hoc interventions, the owners wished to restore the heritage home to its original coherence and strength, while also increasing its capacity.
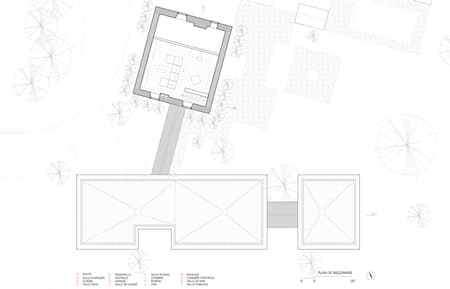
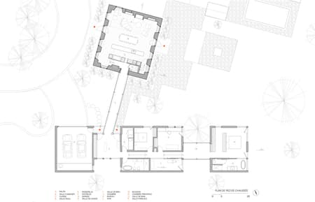
The project is based on a rigorous approach to restoration and reinterpretation. The exterior envelope regains the purity of its original forms through the demolition of an existing addition, the replacement of openings while respecting the original proportions, and the restoration of the cedar shingle roof. Inside, the exposed beams, stone walls, and central fireplace are highlighted, revealing the house's authentic materials. A new double-height space structures the main living area and offers a fresh perspective on the roof structure.
The deliberately discreet contemporary extension is nestled among the mature trees of the garden. Its volume expands and contracts to preserve the existing natural environment. The extension is organized along a central ramp that follows the natural slope of the land. The materials—ebony-stained cedar, dark wood, and a pebble roof—ensure a sensitive integration into the landscape.
A glazed passageway connects the two buildings, acting as a threshold between heritage and modernity.
The Aubé house becomes an organic and coherent whole, where architecture, landscape, and memory engage in a harmonious dialogue. The intervention does not freeze the heritage; rather, it inscribes it within a living continuity, making the house a true family hub. The garden, the backdrop to this evolution, becomes the stage for this shared living experience. The heritage house, far from remaining frozen in time, becomes memory, the memory of a place that is written, reinvented and passed on.



















