In the village of Utriai (Klaipėda District), a newly constructed object dismantles the stereotypical view of a farm building. The architectural bureau "G. Natkevičius & Partners" presents a project where, beneath a metal "armor," lies not only machinery but also a cozy space adapted for hosting guests and overnight stays.
Contemporary architecture increasingly blurs the lines between functions. Why can't a building designed for farm equipment be aesthetically pleasing? Why can't a warehouse become a cozy shelter for guests? This project answers both questions by proposing a hybrid model: it is an "other (farm) purpose building – barn (jauja)," where utility meets comfort.
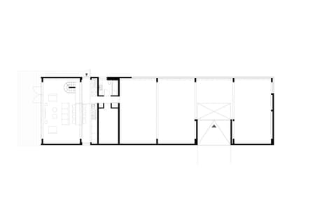
The primary architectural code of this project is flexibility. The plan structure is clearly divided into two zones, which, although under one roof, serve different scenarios. The larger part of the volume is dedicated to "clean" storage—a high, open space accessible through wide sectional doors, perfectly suited for machinery or larger agricultural tasks.
However, the western part of the building is designed on a human scale. Here, a separate entrance leads to areas that transcend the concept of a typical warehouse. The designed auxiliary rooms and the mezzanine floor create a truly universal space. Thanks to high-quality engineering solutions and an abundance of natural light, this zone can transform instantly: during the day, it can serve as a workspace or workshop, and when needed, it becomes a fully-fledged living area for guests, offering accommodation with a view of nature.
The coziness, unusual for farm buildings, is created by the choice of materials. The architects (Project Lead T. Jūras, Arch. K. Lodaitė) deliberately avoid "cheap" finishing solutions. The character of the interior is shaped by exposed glued laminated timber (glulam) structures (GL28h class). Massive wooden frames add rhythm and warmth to the space, softening the industrial coolness of the polished concrete floors. This duo of materials creates a loft-like aesthetic—the space is durable enough for work, yet refined enough for relaxation.
For a building to be suitable not just for objects but for people, natural light is vital. A large glass showcase in the western facade frames the sunsets, while the most striking element—a skylight that transitions into a vertical window on the northern facade—ensures that even the deepest corners of the building are illuminated. This allows the mezzanine to feel not like an attic, but like a spacious observatory.
Externally, the building remains mysterious and enclosed. The mono-pitch, wedge-shaped volume is clad in a uniform "skin"—stainless steel-colored sandwich panels. It is a building-shell: strong, durable, low-maintenance, protecting its internal, multifaceted life. The 35-degree roof pitch not only forms a dynamic silhouette but is also ready for energy independence (solar power).



























