The UNSW Health Translation Hub (HTH) is conceived as a landmark for innovation, collaboration, and community, an architectural and landscape response that bridges the UNSW Kensington Campus with the Randwick Health and Innovation Precinct (RHIP). The design unites education, research, and healthcare within a connected ecosystem that fosters knowledge exchange and translational health outcomes, which shortens the feedback loop between health research and clinical practice. Subsequently, the discoveries from the laboratory ("bench") to patient care ("bedside") and vice versa are more efficient, ultimately, leading to improved health outcomes for the community.
Connecting Campus and Precinct – Strategically located at the intersection of High and Botany Streets, the HTH physically and symbolically connects the UNSW Campus with the adjacent hospital precinct. The building's open and permeable ground plane integrates public movement through the site, providing through-site links that connect the surrounding transport network with key campus and health destinations. Two glazed pedestrian bridges reinforce this connectivity, linking the HTH to the Wallace Wurth Building to the west and the Sydney Children's Hospital and Minderoo Children's Comprehensive Cancer Centre to the east, creating a seamless flow of people, ideas, and discovery.
Architectural Expression – Rising 14 storeys, the building's sculptural form embodies the building's role in uniting people, disciplines, and ideas. Its architecture expresses lightness, permeability, and movement with a distinctive façade inspired by the wind-shaped dunes of Sydney's eastern coastline, a contemporary interpretation of Country and place. A façade system of projecting hoods, double glazing and insulated panels provides solar control while dematerialising the building's mass. The composition of glass reinforced concrete (GRC) panels, curved aluminium sunshades, and high-performance glazing achieves a 60 per cent reduction in solar radiation while maintaining visual transparency and openness. This layered system creates depth and texture, capturing shifting light and shadow throughout the day. At ground level, the highly transparent façade enhances permeability and welcome, while the tower's lighter expression "of the sky" establishes a civic beacon for the precinct. Material selections draw inspiration from the sandy tones and textures of the local landscape; light masonry, expansive glass, and concrete finishes that ground the building in place.
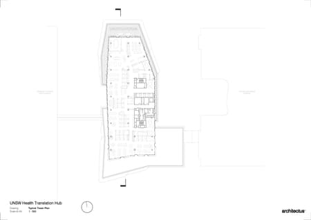
Social Heart and Interior Experience – At the centre of the HTH, a multi-level atrium weaves around the social and collaborative heart of the building. This light-filled vertical space visually and physically connects four podium levels through a cascading feature stair and generous circulation zones. These spaces foster chance encounters that encourage interaction among academics, researchers, clinicians, students, and the public. The atrium reveals the inner workings of the building, symbolising the transparency of contemporary translational health research. The interior design builds on the coastal landforms referenced in the architecture and landscape design. Creating datums of materialised components that form seating, tables, benching, and planting zones. Subtle changing floor patina defines pathways and assists in intuitive spatial navigation. Texturally rich materials highlight engagement points and isolate spaces to achieve high acoustic performance.
Place and Country – The HTH opens generously to the public domain through a civic landscape that celebrates Country, culture, and connection. Developed in collaboration with Yerrabingin and Aspect Studios, the public realm integrates an Indigenous interpretation of place, expressing the site's history and ecology through form, planting, and material. Positioned atop the historic sand dunes between Botany Bay and Sydney Harbour, the landscape scheme evokes these shifting coastal landforms through sandstone terraces, endemic vegetation, and a sequence of outdoor rooms for gathering, learning, and reflection. A diverse planting palette draws on the medicinal and cultural significance of native flora, enriching the experience of movement through the site and reinforcing the building's broader narrative of healing, learning, and discovery. Guided by the principle of Country as Medicine, the concept honours the enduring knowledge of the Bidjigal and Gadigal peoples, creating a setting that restores, educates, and connects. At the edges, an activated ground and mezzanine level host public-facing functions, including retail, exhibition, clinical, and educational spaces, establishing a transparent, welcoming interface between UNSW and the broader community.
Sustainability and Performance – Working in close collaboration with Atelier Ten, the project's ESD strategy is deeply aligned with the UNSW Climate Action Plan, centred on four core pillars: collaboration, health and wellness, future resilience, and carbon efficiency. These ambitions are embedded in the design through passive environmental principles, high-performance building systems, and an adaptable façade that enhances flexibility, comfort, and long-term durability. The HTH achieves a 6 Star Green Star (Buildings v1) rating, supported by a responsibly sourced building envelope, with 30% of the façade meeting a Responsible Product Value (RPV) of 10 or more. The building delivers significant environmental performance improvements, including a 20% reduction in both carbon emissions and energy use compared to reference benchmarks. It is fully electrified and powered by 100% renewable energy, complemented by a 100 kWh rooftop solar photovoltaic array.
Operational performance targets include a 5.5 Star NABERS Energy rating and a 5 Star NABERS Water rating, while digital resilience and future readiness are recognised through a WiredScore Platinum certification. Together, these initiatives establish the project as a benchmark for sustainable, resilient, and future-focused health and research infrastructure. To promote sustainable mobility, end-of-trip facilities accessed via a dedicated bike ramp from Botany Street cater for up to 3,000 occupants, providing over 120 bicycle spaces, showers, lockers, and accessible amenities that encourage active, low-carbon commuting. Contributing more than 2,500 sqm of publicly accessible open space, the HTH demonstrates how sustainability can shape not only the performance of a building, but the quality of the place, connection, and community it supports.

.jpg?w=450&q=75&dpl=dpl_GPa8zmuvymkCfD1cLV9Vvzj1h3mL)
.jpg?w=450&q=75&dpl=dpl_GPa8zmuvymkCfD1cLV9Vvzj1h3mL)
.jpg?w=450&q=75&dpl=dpl_GPa8zmuvymkCfD1cLV9Vvzj1h3mL)
.jpg?w=450&q=75&dpl=dpl_GPa8zmuvymkCfD1cLV9Vvzj1h3mL)

.jpg?w=450&q=75&dpl=dpl_GPa8zmuvymkCfD1cLV9Vvzj1h3mL)
.jpg?w=450&q=75&dpl=dpl_GPa8zmuvymkCfD1cLV9Vvzj1h3mL)

.jpg?w=450&q=75&dpl=dpl_GPa8zmuvymkCfD1cLV9Vvzj1h3mL)

.jpg?w=450&q=75&dpl=dpl_GPa8zmuvymkCfD1cLV9Vvzj1h3mL)

.jpg?w=450&q=75&dpl=dpl_GPa8zmuvymkCfD1cLV9Vvzj1h3mL)

.jpg?w=450&q=75&dpl=dpl_GPa8zmuvymkCfD1cLV9Vvzj1h3mL)























