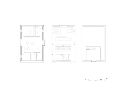
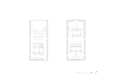
Our project at Nærsnes, located 20 kilometers southwest of Oslo, comprises two distinct residences, designed to accommodate a son and his father, each providing independent living spaces while maintaining a sense of privacy.
Nestled within the picturesque rolling terrain, this project seeks to redefine coastal living by seamlessly blending with the natural surroundings and paying homage to the rich maritime history of the area. The property is beautifully situated, sloping gently towards Nærsnesbukta. It features an existing house flanked by two interconnected buildings, inspired in their design by the traditional boathouse found in the region.
Within these angular black structures, you’ll find open-concept kitchen, living, and dining areas on the ground floor. A central wooden staircase gracefully ascends to the upper floor, where sleeping quarters and more private spaces of bedrooms, bathrooms, and lounges await.
The floor plans have been meticulously designed to maximize space utilization and efficiency. To simplify the construction process, the buildings exhibit a high degree of consistency in materials and design details. The placement of these residences adhere to a combination of overarching regulations and careful consideration of the property’s unique terrain.





























