Trumpf's Hungary "Smart Factory" is site-specific and located in Gödöllő in a ubiquitous industrial park on the outskirts of Budapest and for servicing Eastern Europe. Like Trumpfs's Smart Factory outside of Chicago it offers a more modestly scaled "factory/ showroom" to demonstrate Industry 2.0 where Trumpfs's machine tools are digitally and physically connected. Customers can experience the complete production chain from custom sheet metal forming to construction by their machines to delivery. This Smart Factory follows its own logic in terms of construction and technical resolution in reaction to site and place (building culture) in a refined and unique way typical to all Trumpf factories and buildings outside of its headquarters in Stuttgart.
This midsize building is organized around a trapezoidal plan as determined by the acquired land parcel. The layout takes advantage of this orientation by having a double-height showroom which is located at the shorter and south-facing/ more visible face of the site. A two-story volume containing offices, seminar rooms, classrooms, and storage orients to the north. A central upper courtyard is carved out of the overall volume and helps let natural light permeate the deep floor plate for cafe offices and meeting spaces. Like in Chicago, the customers can move along a "catwalk" on the upper floor in order to view and understand the production techniques and methods in-action between the machines below. This viewing platform is situated under the long-span 20-meter timber beams enclosing the factory showroom.
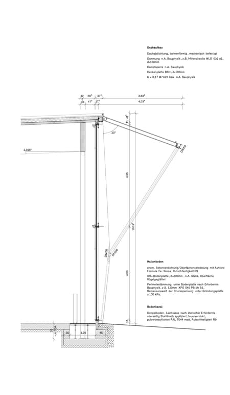
The timber (glulam) butterfly roof slopes inward toward the courtyard/ roof garden. The roof beams are organized into three bands of structure running from south to north as defined by the showroom module, courtyard, and north program strip. The beams are visible and are radial and offset to each band texturing the ceiling with a deep structure. The space between the beams can be used for lighting, timber decking, or acoustical surfaces. The windows are also of timber (larch) are locally fabricated and are super-sized to fit the industrial scale of the building. The south façade/ "schaufenster" is double height and framed in steel to offer both views out and views in as well as daylight.
The roof extends on all four facades, like flaps of an opened cardboard box, to provide sun-shading to the facades. As an ode to industry, the building is clad in corrugated metal, which acts as a shiny wrapper for the box and reveals the underlying logic of the building. The two sizes of the corrugation (smaller on the northern part of the building that houses offices and support programs and larger on the southern part that is the showroom) subtly reflect the highly different spatial and programmatic qualities of the interior, as if two separate buildings were stitched together.

.jpg?w=450&q=75&dpl=dpl_EMk2xYEuFpBx5FJ4NinA72u1QpeJ)
.jpg?w=450&q=75&dpl=dpl_EMk2xYEuFpBx5FJ4NinA72u1QpeJ)

.jpg?w=450&q=75&dpl=dpl_EMk2xYEuFpBx5FJ4NinA72u1QpeJ)
.jpg?w=450&q=75&dpl=dpl_EMk2xYEuFpBx5FJ4NinA72u1QpeJ)

.jpg?w=450&q=75&dpl=dpl_EMk2xYEuFpBx5FJ4NinA72u1QpeJ)


.jpg?w=450&q=75&dpl=dpl_EMk2xYEuFpBx5FJ4NinA72u1QpeJ)

.jpg?w=450&q=75&dpl=dpl_EMk2xYEuFpBx5FJ4NinA72u1QpeJ)



















