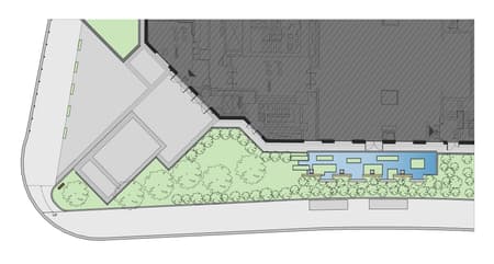
The brand name of Sukhothai Hotel is derived from the first independent dynasty in Thailand's history - Sukhotai, which means "the dawn of happiness". In 2017, Sukhothai opened its first location in China at the heart of Shanghai with the concept of an “urban oasis”, bringing modern urbanites the traditional Southeast Asian hospitality with a contemporary twist. Lukstudio was brought onboard to renovate the outdoor area connecting to the existing bar and restaurant. The site is located right off the main street entrance on Wei Hai Road, a spot where guests pass through to enter the hotel lobby. Part of the site was originally used as an outdoor terrace for the ZUK bar and the rest were green hedges. An intricately designed water pond with four bronze Pagoda sculptures was hidden behind large planters, serving as an outdoor view for the all-day dining restaurant only. Reinforcing the hospitality concept of an “urban oasis”, Lukstudio transformed the previously inactive site into a leisure garden with two all-weathered pergolas. Along the street, a new glass barrier with bamboo screen is installed to filter out the hustle and bustle. The redesigned landscape is filled with layers of leafy vegetation, replacing the original flat planters.
Taking inspiration from the traditional Sala, an open pavilion found throughout Thailand for resting or gathering, the gabled roof pergola structure on a raised wooden platform is designed with swung-out grille on all four sides. The welcoming form creates additional shading and set a tropical tone for the social destination. Teak wooden slats are arrayed below the steel structure, conjuring a friendlier scale and materiality. A gradating interval from denser top to sparser bottom is set to bring in more sunlight and view of foliage. Lukstudio proposed a hollow column design of four angle steels with interval steel binding. Four solid teak slats complete the corners and compose the final column, giving the post-n-beam structure a lighter appearance and a warmer touch. Apart from the sun, elements like rain and wind are also considered to ensure optimal use of these pergolas all year long. Retractable curtain above the grille, proper drainage and rain chains are integrated to create weatherproof outdoor environment.
Between the two pergolas is a new patio, designed to inject vitality with organic materials, the view and scent of lush plants and the sound of water. The original orderly floor tiles are replaced by hand-cut flagstone paving; the four bronze pagodas hidden on the original site are moved to the central water feature, becoming the protagonists of the garden and filling the air with gurgling music of flowing water; the vegetation belt that was originally only used as a barrier are changed to tropical-looking plants that can adapt to the local climate. The layered expression of nature brings upon a garden lounging experience that fulfills the five senses.
Passing through the patio, one would arrive at the URBAN Terrace, an extension to the all-day dining restaurant. Supported by the original brick wall backdrop, a cantilevered structure with retractable canopy now provides all-weathering outdoor dining possibility while its gradient design ensures ample daylight reaching the restaurant interiors. As the sun goes down, contrasting lighting design present guests a choice of atmospheres. While each of the teak canopies exudes a warm glow and attract those with a socializing spirit, the lounge tables scattering in the garden with dim lighting could be more appealing for intimate conversations.
To deliver a bespoke experience, Lukstudio has designed a collection of outdoor furniture expressing the concept of foliage and vein in the Southeast Asian style. Made out of teak, the bespoke series is a contemporary take on traditional Southeast Asian furniture, offering attractive pure lines and exotic colours with high level of comfort. The tabletops and the back of the lounge chair, are composed of slanting wooden planks, a motif echoing the organic leaf veins while being functional for water drainage.
Lighter dining and lounge chairs are made of aluminum tube frames and nylon braided rope for more flexible combination. The elegant arc not only mimics the aesthetics of foliage, but also provides comfortable support for the body.
Taking inspiration from the Southeast Asian root of the hotel and addressing the specifics of the urban site, Lukstudio has transformed an underutilized space blending expressions of nature. The Sala Garden enables visitors to momentarily flee from the city center and connect to their relaxed state of mind.















