Located just a three-minute walk from the surf at Berawa Beach in Canggu, The LUC Bali Lifestyle stands at the centre of a neighbourhood synonymous with healthy living, creative enterprise, and modern island culture. Cafés serving plant-based cuisine, boutique fitness studios, and independent retail spaces line the surrounding streets, forming an energetic urban fabric that continues to evolve. Within this context, The LUC emerges not simply as another commercial development, but as a spatial experiment that blends retail, hospitality, and villa functions into a cohesive tropical environment.
Conceived as a new landmark in an area already dense with commercial activity, the project seeks distinction not through height or monumentality, but through spatial choreography. Its architectural language is defined by a bold yet contextual play of form, colour, and movement. Rather than conforming to the predictable model of linear shopfronts along a flat site, the design introduces a dynamic composition that encourages exploration and interaction. The result is a destination that feels curated and immersive rather than purely transactional.
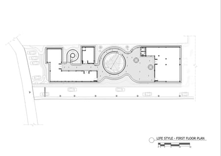
At the core of the project’s strategy is an embrace of openness and connectivity. Responding to a growing audience of globally minded travellers, digital nomads, and local entrepreneurs, The LUC Lifestyle rejects enclosure in favour of permeability. The design began with an exploration of modular compositions and fragmented volumes. Instead of presenting a uniform row of buildings, the masses are arranged in a deliberate zigzag formation that alternately pushes forward and pulls back. This gesture creates a rhythmic visual pattern along the main axis of the site while shaping an active circulation spine that guides visitors through the development.
This zigzag configuration does more than animate the façade. It fosters layered spatial experiences and enhances the relationship among the twelve tenants that occupy the complex. The alternating volumes generate pockets of semi-private terraces, shaded walkways, and framed views, allowing each tenant to maintain its own identity while remaining part of a cohesive whole. Movement through the site becomes an experience of compression and release, of shadow and light, reinforcing a sense of discovery.
The architectural form draws inspiration from the Dulang, a traditional Balinese offering tray used in ceremonial practices. Rather than replicating the object literally, the design abstracts its essence into a contemporary geometric language. Circular elements that echo the tray’s rounded form are integrated as focal points within the composition. These curves soften the angularity of the massing and introduce moments of visual pause. In this way, the project establishes a subtle dialogue between tradition and modernity, grounding its contemporary expression in cultural reference without resorting to imitation.
From this rhythmic arrangement of volumes, the site unfolds into a central public space that becomes the heart of the development. Here, architecture meets human activity in its most direct form. An open amphitheatre anchors the composition and functions as a multifunctional stage capable of hosting community gatherings, brand launches, live performances, or informal social encounters. This amphitheatre is not an afterthought. It is the spatial and conceptual core of The LUC. By prioritizing communal space over leasable area, the project signals its ambition to be more than a commercial corridor. It aims to be a social condenser.
The presence of this open-air forum transforms the development into a lively destination rather than a mere passageway between storefronts. Visitors are invited to linger, sit, and participate. The stepped seating encourages spontaneous interaction, while the surrounding balconies and terraces provide layered vantage points overlooking the central activity. The architecture frames and amplifies human presence, reinforcing the idea that the true vitality of the project lies in the people who inhabit it.
Tropical vegetation plays a fundamental role in shaping this experience. Rather than serving as decorative ornament, planting is strategically arranged along the site’s horizontal lines, softening the commercial edges of the architecture. Lush greenery cascades from upper levels, filters sunlight, and creates microclimates within the open circulation zones. The interplay of foliage and built form reconnects the development to Bali’s natural landscape, tempering the bold architectural gestures with organic texture and shade. In doing so, the project negotiates the tension between urban density and tropical openness.
Another defining layer of the project is its distinctive colour and material palette. The choice of a Himalayan pink tone establishes an immediately recognizable visual identity. At once intuitive and deliberate, the hue responds to the realities of a social media driven environment, where photogenic spaces can amplify visibility and brand presence. Yet the intention extends beyond trend. The pink is calibrated to remain timeless rather than fleeting, drawing subtle inspiration from mid-century aesthetics and tropical modernism. Paired with carefully selected materials, the colour creates a character that is both playful and composed.
The material strategy reinforces this balance. Smooth rendered surfaces interact with textured finishes, while circular accents punctuate planar façades. Light shifts across the surfaces throughout the day, intensifying the depth of the zigzag volumes. Once again, vegetation acts as a natural counterpoint to the architectural boldness. The green of tropical planting offsets the warmth of the pink palette, blending the contemporary composition seamlessly into its island setting.
Ultimately, The LUC Bali Lifestyle represents an integration of thoughtful design and market awareness. It acknowledges the evolving patterns of consumption and community in Berawa, where visitors increasingly seek experiences rather than simple transactions. By weaving together retail, hospitality, and residential elements within a unified spatial narrative, the project transcends the conventional commercial complex. It becomes a curated architectural environment that celebrates movement, connection, and the layered character of modern Bali.
In a neighbourhood defined by rapid growth and shifting identities, The LUC offers a vision of development that is experiential, culturally attuned, and environmentally responsive. Through its modular massing, communal heart, and confident use of colour, it establishes itself not only as a landmark, but as a living stage for the rhythms of island life.
.jpg?w=450&q=75&dpl=dpl_EMk2xYEuFpBx5FJ4NinA72u1QpeJ)
.jpg?w=450&q=75&dpl=dpl_EMk2xYEuFpBx5FJ4NinA72u1QpeJ)
.jpg?w=450&q=75&dpl=dpl_EMk2xYEuFpBx5FJ4NinA72u1QpeJ)
.jpg?w=450&q=75&dpl=dpl_EMk2xYEuFpBx5FJ4NinA72u1QpeJ)
.jpg?w=450&q=75&dpl=dpl_EMk2xYEuFpBx5FJ4NinA72u1QpeJ)
.jpg?w=450&q=75&dpl=dpl_EMk2xYEuFpBx5FJ4NinA72u1QpeJ)
.jpg?w=450&q=75&dpl=dpl_EMk2xYEuFpBx5FJ4NinA72u1QpeJ)


.jpg?w=450&q=75&dpl=dpl_EMk2xYEuFpBx5FJ4NinA72u1QpeJ)
.jpg?w=450&q=75&dpl=dpl_EMk2xYEuFpBx5FJ4NinA72u1QpeJ)

.jpg?w=450&q=75&dpl=dpl_EMk2xYEuFpBx5FJ4NinA72u1QpeJ)
.jpg?w=450&q=75&dpl=dpl_EMk2xYEuFpBx5FJ4NinA72u1QpeJ)
.jpg?w=450&q=75&dpl=dpl_EMk2xYEuFpBx5FJ4NinA72u1QpeJ)
.jpg?w=450&q=75&dpl=dpl_EMk2xYEuFpBx5FJ4NinA72u1QpeJ)
.jpg?w=450&q=75&dpl=dpl_EMk2xYEuFpBx5FJ4NinA72u1QpeJ)
.jpg?w=450&q=75&dpl=dpl_EMk2xYEuFpBx5FJ4NinA72u1QpeJ)
.jpg?w=450&q=75&dpl=dpl_EMk2xYEuFpBx5FJ4NinA72u1QpeJ)
.jpg?w=450&q=75&dpl=dpl_EMk2xYEuFpBx5FJ4NinA72u1QpeJ)
.jpg?w=450&q=75&dpl=dpl_EMk2xYEuFpBx5FJ4NinA72u1QpeJ)
.jpg?w=450&q=75&dpl=dpl_EMk2xYEuFpBx5FJ4NinA72u1QpeJ)
.jpg?w=450&q=75&dpl=dpl_EMk2xYEuFpBx5FJ4NinA72u1QpeJ)





