The Loop is an experience-led space for The Wardrobe Company, a brand built around flexibility, customisation, dialogue, and co-creation, where kitchens, wardrobes, and objects could be explored as part of a narrative rather than a catalogue. The intent was to encourage discovery through interaction and conversation, allowing customers to immerse themselves in the brand ethos and make informed choices at their own pace.
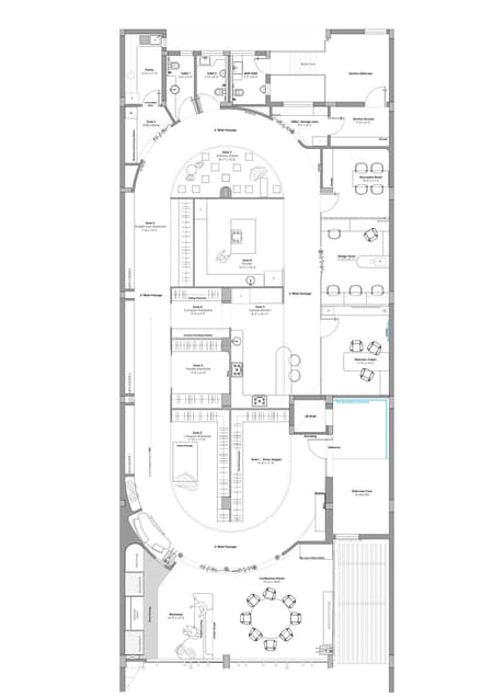
Located in Okhla, the 3,700 square foot plan was developed around a continuous circulation loop that connects all functions into one coherent sequence. The intent was to allow the user to move through discovery, conversation and collaboration without ever feeling disconnected. The design process was highly collaborative, with workshops helping to define brand personality, spatial intent, and user journeys. The brief emphasised that the showroom must act not only as a product display but also as a platform for meaningful engagement. It had to be a space where clients could connect emotionally, build alongside the brand, and experience design as a participatory process rather than a transactional exchange.
The experience begins at the lift lobby. As the doors open, a quiet steel clad wall with the TWC logo sets the tone. The alignment of proportions, light and texture reflects the brand’s design sensibility, one that is precise, restrained and confident. The idea was to communicate the spirit of TWC through small gestures, through the way a wall meets the floor, through the sharpness of an edge or the crispness of a logo lit with care. These moments establish the identity of the space without the need for overt expression.
The front zone opens into the Idea Lab and the Client Workshop, spaces that anchor the user’s first interaction with the brand. A monolithic stepped seater in micro concrete occupies one side, its filleted edges making it appear as if the floor itself has lifted to form it. On the other side, a volume carved into the wall holds two long red shelves for materials and display. Between these elements, the space feels deliberate and calm, structured yet open. Three slender stainless steel columns introduce a soft rhythm across the room, and a veil of woven metal curtains blurs the boundary between public and private areas. Light filters gently through this layer, shifting character through the day.
As one moves inward, the central loop becomes the heart of the experience. This passage connects every zone and houses the main product displays. Kitchens, wardrobes and accessories are arranged as a sequence of encounters rather than static showcases. Along the way, small information points introduce the brand, materials and construction logic, each offering a pause and a moment for touch. Overhead, a custom steel light installation traces a serpentine path through the corridor. It defines direction and pace, acting as a subtle guide that moves visitors through the space while tying the journey together.
The material palette remains quiet and tactile. The floor shifts between two tones of micro concrete, divided by a slim stainless steel inlay that outlines the circulation. The walls are finished in lime plaster, their soft grain catching light with a natural texture. Structural beams are wrapped in brushed steel, revealing the existing framework instead of concealing it. Typography appears in small decals on the floor, serving as understated cues rather than signage. Every junction and edge is detailed to convey precision and care, creating an atmosphere of ease and order.
Towards the end of the loop, the atmosphere begins to change. The path leads to the space for art and objects, where the experience becomes slower and more contemplative. A series of pedestals of varying heights display sculptural pieces and brand extensions. The light warms, the forms curve gently, and the textures deepen to create a quiet sense of pause. It is both an end and a moment of reflection, where the energy of the loop settles into stillness.
Opposite this area, behind curved walls and concealed doors, are the service spaces, including the pantry, washrooms and utilities. These continue the same geometry and material language, keeping the experience seamless and unbroken.
The Loop transforms the idea of retail into a spatial narrative. It moves beyond product display to create a setting for conversation, collaboration and discovery. Light, movement and material shape a sense of continuity and calm. The result is a space that invites people to build ideas, not just wardrobes, where design is experienced as something gradual and human.

.jpg?w=450&q=75&dpl=dpl_EMk2xYEuFpBx5FJ4NinA72u1QpeJ)
.jpg?w=450&q=75&dpl=dpl_EMk2xYEuFpBx5FJ4NinA72u1QpeJ)
.jpg?w=450&q=75&dpl=dpl_EMk2xYEuFpBx5FJ4NinA72u1QpeJ)
.jpg?w=450&q=75&dpl=dpl_EMk2xYEuFpBx5FJ4NinA72u1QpeJ)
.jpg?w=450&q=75&dpl=dpl_EMk2xYEuFpBx5FJ4NinA72u1QpeJ)
.jpg?w=450&q=75&dpl=dpl_EMk2xYEuFpBx5FJ4NinA72u1QpeJ)
.jpg?w=450&q=75&dpl=dpl_EMk2xYEuFpBx5FJ4NinA72u1QpeJ)
.jpg?w=450&q=75&dpl=dpl_EMk2xYEuFpBx5FJ4NinA72u1QpeJ)
.jpg?w=450&q=75&dpl=dpl_EMk2xYEuFpBx5FJ4NinA72u1QpeJ)
.jpg?w=450&q=75&dpl=dpl_EMk2xYEuFpBx5FJ4NinA72u1QpeJ)





