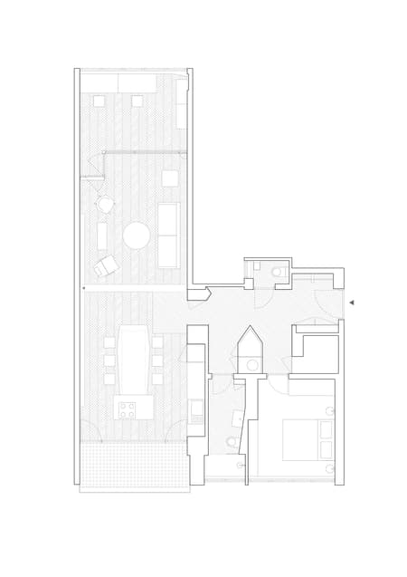
The transformation of a one-bedroom 94 sqm apartment into a two-bedroom (or one-bedroom and a working space) flat.
The apartment is situated on Vukovarska, an important Zagreb street with a big concentration of Yugoslavian period modernist buildings, and the site building is one of them. We tried to keep part of this original, modernist spirit of the architecture (materials, and features of the building) while mixing it with our Italian-based experience of designing a living space.
Upon entering the apartment you face a long corridor leading towards the living area. Given that is a space without loose furniture it allowed us to play with built-in furniture/shapes more architecturally. The wooden cabinets are designed in a way that makes them seem a composition of abstract elements while not expressing their functionality (storage, utility, laundry). It is a space without natural light so the doors of the adjacent rooms (bedroom and bathroom) are translucent to let the maximum amount of light inside. All the furniture is placed between these light sources (like islands) and, to achieve permeability (and make movement easier), the forms are faceted. A floor-to-ceiling mirror plays with the reflected elements and visually extends the space. We combined the oak veneer with a red micro cement floor resulting in a very warm and enchanting atmosphere (it was also the color palette quite often used at the time the building was constructed).
The corridor ends with a long open-plan kitchen, living area, and studio extending from the back to the front facade. This gives the space light exposure from both sides, which is a rare and beautiful quality we wanted to keep while optimizing the use of the space. We divided the studio area with a translucent wall, in a very light and somehow magical way. The room is given the privacy it needs while the living area benefits from the light coming from two sides of the space. The division itself is a composition of fixed translucent glass and wooden openings; windows behave like an inner facade achieving spatial continuity while permitting natural ventilation. During the night, with the lights turned on, it performs like a big glowing light feature.
The clients like hosting people very much, this is why the kitchen is the heart of this space. Placed in the center of the room, the stove and the dining table are custom-designed as one element with the loggia and greenery as the background. This layout permits cooking and socializing at the same time. The rest of the kitchen elements; the white wall-like board hiding the fridge, the marble top and wall protection, and the gradient cupboards form an abstract composition within the kitchen space. We believe this quality plays an important role in the beauty of living.
The floor of the apartment is mostly original; the parquet in the living room, the studio, the kitchen area, and the terrazzo floor in the bedroom (originally kitchen). The missing part is replaced with the red micro cement in the corridor and two bathrooms. In the main space, the red floor is interrupted by a white stripe in the position where a division wall used to be. At the end, the line transforms into a long shelf connecting the living and kitchen areas. It is used to display various objects the owners collected during their travels.

























