Located in Puigpunyent, Mallorca, this project led by the IBAVI (Balearic Housing Institute) proposes a building designed with criteria of sustainability, energy efficiency, and respect for the natural environment. To achieve this, the project develops from a model of local economy that recovers trades, construction systems, and passive strategies inherent to the native island culture.
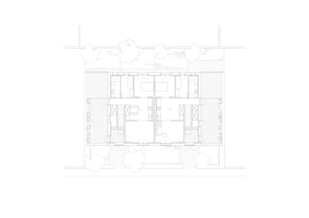
With two floors and a gabled roof, the building is divided into six housing units, four on the ground floor and two on the upper floor. The units on the ground floor have one bedroom and access to a private outdoor space, while the apartments on the upper floor accommodate two bedrooms and open to their own exterior terrace. Open, flexible, and adaptable spaces are proposed, directly relating to each other with the kitchen as the central area. This layout is the result of combining three structural bays.
The materiality of the building responds to its surroundings, using local materials and strategies. The cyclopean lime facades incorporate stones and earth from the excavation itself. The partitions are made of island ceramics, filled with leftover sand from local quarries and finished with clay and straw. The floors and carpentry are made of FSC-certified wood. The interior floors of local lime, exterior pavements, tiles, and roof tiles were also sourced nearby.
The building is strategically designed to maximize solar capture in winter and reduce cooling demand in summer, incorporating cross ventilation, solar protection, high thermal inertia in floors and walls, and hygroscopic and breathable materials that regulate humidity. The "trombe" roof is a key element that captures heat in winter and ventilates in summer, regulating temperature and thus eliminating active systems. Finally, the private patios serve as control and filtering elements for user ventilation of the homes.
With an almost zero energy consumption (1.7 kWh/m²·year, NZEB), the project reduces CO₂ emissions by 50%, while circularity criteria lead to a 60% reduction in waste. Moreover, there has been a conscious effort to build systems where materials can be separated in the event of demolition for reuse. The Life Cycle Analysis demonstrates a low CO2 cost in construction (230 Kg CO2/m²), which represents a 50% reduction compared to conventional buildings.
The result is a set of homes that reduces its impact on the environment while reinforcing the local economy and promoting territorial regeneration. By incorporating vernacular materials and techniques, Ses Veles Puigpunyent proposes an architecture in dialogue with island culture, combining technical innovation and environmental responsibility.

























