Designed during the pandemic, this project emerges as a critical reflection on contemporary commercial spaces and their ability to adapt to new models of living, working, and consuming. Rather than being an immediate response to the health emergency, the proposal stems from a deeper question: how should architecture respond to a reality demanding long-term flexibility, efficiency, and urban responsibility?
The building is envisioned as a versatile commercial space capable of accommodating various occupancy schemes. It can function as a single unit, be divided into four independent platforms across two levels, or further subdivided into up to sixteen modules within the same levels. This flexibility introduces a dynamic approach to land use and urban property. Conceived as an indivisible heritage asset, the building will be managed by an organization overseeing its urban-commercial purpose, maintenance, evolution, and permanence over time.
The project is located in a low-density neighborhood adjacent to Querétaro’s historic center, an area undergoing regulatory transformation aimed at promoting greater density and conversion to commercial and service uses within a framework of urban revitalization.
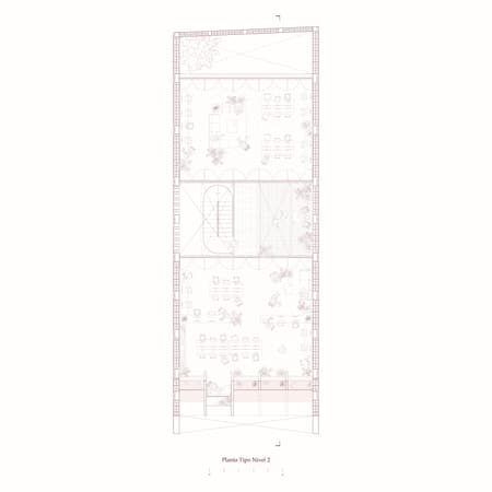
Formally, the building consists of a semi-basement and two open-plan levels above street level. While the semi-basement is legislatively designated for services—parking, mechanical rooms, and shared restrooms—it is designed as an open plan to accommodate commercial programs that engage with the street, aiming to activate the immediate surroundings. At street level, this openness fosters public life, encouraging social interaction through programs integrated into the existing neighborhood fabric. The upper two levels feature open platforms divided by a central staircase core, organizing circulation and structuring the space. This configuration allows internal subdivisions without compromising environmental quality, enhances natural light and cross-ventilation, and establishes vertical connections through strategically placed voids that link the semi-basement to the rooftop.
During construction, the opportunity arose to activate the rooftop as a functional space. In contrast to neighboring roofs—often neglected, cluttered with improvised installations, and visual pollutants—the proposal integrates the rooftop into the project through two strategies: planters that serve as passive insulation, reducing interior temperatures and minimizing mechanical climate control needs; and two block vaults over the dome and staircase extension, which provide shade, collect rainwater, and enhance ventilation through the Venturi effect, creating a comfortable, energy-efficient atmosphere.
The building’s materiality reflects an aesthetic of constructive honesty. Apparent industrial materials are used: exposed steel structure, block walls, translucent metal grilles, and visible mechanical-electrical networks in pink tones, symbolically referencing the pink quarry paving of the historic center. This choice is driven not only by economic and durability considerations but also by the project’s values of clarity, functionality, efficiency, and permanence.
Beyond its internal logic, the building positions itself as an agent of urban transformation. Its purpose is not only to host economic activity but also to regenerate social fabric, enrich its immediate context, and promote a more sustainable urban model.





























