Located in Saint Denis, in the Greater Paris Region, the Académie Fratellini is an internationally renowned circus school, a leisure centre, and a venue for the creation and performance of shows. Following major renovation and extension work, the Académie Fratellini reopened its doors to the public in October 2025. Founded by Annie Fratellini and Pierre Étaix in 1974 and based in Saint Denis since 2003, the Académie Fratellini has undergone an ambitious restructuring and extension project led by the architecture and interior design agency Atelier du Pont. The new project is in keeping with the architectural style of the original designers, Patrick Bouchain and Loïc Julienne, preserving the atmosphere and strong identity of this lively and extraordinary place.
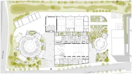
A location redesigned for its users and its territory - Over the past 20 years, the Académie Fratellini has grown considerably and has had to rethink its functioning and that of its site, which was initially designed to be temporary. The intervention of Atelier du Pont has made it possible to preserve the existing buildings, expand the Académie and rethink its overall functioning in order to simplify the daily lives of its users, encourage simultaneous activities and open up the site to its surroundings. The Halle was given two side wings to become La Grande Halle, providing the higher education institution and administration with new facilities needed for teaching and staff work. Its structure was reinforced, in particular to allow the apparatus to be hung from it. The central space thus freed up became a new welcoming area for circus training and events.
A new 17-metre-high creation and performance studio, Studio Zéro, was built to complement the existing infrastructure. With its frontal configuration, it is adapted to the needs of contemporary circus. To connect these different programmes, a new lively square opens onto the city, providing a breath of fresh air and a place for conviviality. These developments reinforce the Académie Fratellini's roots in the local area and its links with the neighbourhood.
An outstanding environmental approach - The project stands out for its ambitious environmental approach and complies with the Bâtiment Durable Francilien Silver standard (Île-de-France Sustainable Building). The materials used are mainly bio-based and locally sourced, limiting the project's carbon footprint and promoting virtuous supply chains. An unprecedented reuse strategy has been implemented, with a reuse store set up in the Grand Chapiteau for the duration of the construction work, extending the philosophy of the initial project: make do with what you have, recycle, transform.













