BAM PR Logo
House
OneTwoHouse
Berlin, Germany
2024

The “OneTwoHouse” by rundzwei Architekten BDA Single-family house with an optical illusion, spatial clarity, and sustainable construction
The OneTwoHouse (EinZweiHaus) is a residential building whose exterior form creates an optical illusion: Although it appears to be a semi-detached house, it is in fact a single-family home. The staggered volumes and symmetrical façade create the impression of two separate units that are, however, united under one roof.

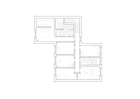
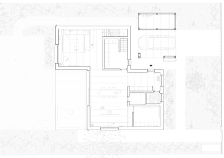
The spacious ground floor accommodates the public areas of the house and opens generously toward the garden. High ceilings and a delicate wooden ceiling structure create a bright, welcoming atmosphere that allows for a smooth and harmonious transition to the private upper floor. Carefully placed windows frame views of the outdoors and create a strong connection between inside and outside.

The upper floor houses the family’s private retreat. The bedrooms are intentionally compact to ensure an intimate, cozy atmosphere. A large central hallway acts as the lifeline of this level, connecting all rooms while offering space for both interaction and retreat. The nameOneTwoHouse describes not only the outer appearance but also the sense of unity and reciprocity that can be felt inside the building. The architecture balances openness on the ground floor with tranquility on the upper floor. This merging of two seemingly separate worlds under one roof is reflected throughout the details of the house.

The EinZweiHaus is more than just a place to live. It is a space that, through its design and functionality, bridges the external appearance of a semi-detached house with the inner structure of a single-family home. It unites both worlds under one roof—offering a home that is open and spacious while also private and comfortable.

Expand full description
OneTwoHouse
© Nate Cook
OneTwoHouse
© Nate Cook
OneTwoHouse
© Nate Cook
OneTwoHouse
© Nate Cook
OneTwoHouse
© Nate Cook
OneTwoHouse
© Nate Cook
OneTwoHouse
© Nate Cook
OneTwoHouse
© Nate Cook
OneTwoHouse
© Nate Cook
OneTwoHouse
© Nate Cook
OneTwoHouse
© Nate Cook
OneTwoHouse
© Nate Cook
OneTwoHouse
© Nate Cook
OneTwoHouse
© Nate Cook
OneTwoHouse
© Nate Cook
OneTwoHouse
© Nate Cook
OneTwoHouse
© Nate Cook
OneTwoHouse
© Courtesy of rundzwei Architekten
OneTwoHouse
© Courtesy of rundzwei Architekten
OneTwoHouse
© Courtesy of rundzwei Architekten
OneTwoHouse
© Courtesy of rundzwei Architekten

Related you may like