A key design challenge was how to translate the abstract notion of spatial energy into tangible three-dimensional forms, while integrating it seamlessly with the functional requirements of a café.
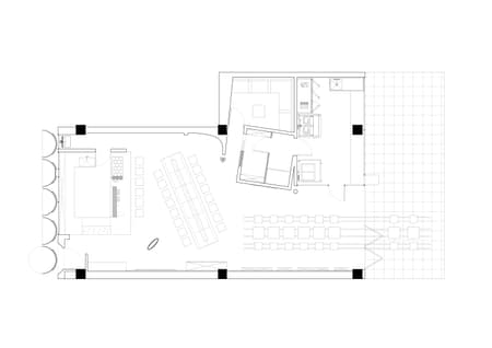
In the floor plan, major zones are subtly rotated at different angles, while four formally distinct columns are introduced to guide circulation and sightlines. This strategy disrupts the homogeneity of a linear space and establishes moments of openness and enclosure. Visitors are naturally drawn either toward more expansive areas or into sheltered corners — the first layer through which spatial energy becomes perceptible.
Different people converge here, and multiple narratives unfold simultaneously. A series of kinetic mechanisms was designed to support these layered scenarios: guests enter through the main entrance as a curved door slides into a recessed circular track; baristas lock fittings into grooves behind the counter to pass coffee through the takeaway window; customers seated around the planter table draw the red curtain at the far end to take photos; staff members hang seasonal pastries on a four-point star display rack and roll it toward newly arrived guests for presentation. On pleasant days, the scene extends outdoors — tables glide along embedded tracks, seamlessly shifting coffee moments into the sunlight.
Through these mechanisms and scenes, the brand’s core idea of spatial energy is internalized within everyday actions, transforming an abstract concept into both two-dimensional visual language and three-dimensional spatial experience.
Given the complexity of the site within a dense commercial district, the front and rear facades are treated differently.
The front facade directly faces a neighboring barbecue restaurant — lively and grounded, yet not an ideal context for a café. On-Site needed to remain visible from across the street while shielding itself from smoke, noise, and visual clutter. Conventional storefront strategies of signage and transparent glazing proved insufficient.
Drawing from the brand’s visual language, five hollow semi-cylindrical volumes with architectural presence were assembled to form a semi-enclosed front facade. Their repetition establishes rhythm and identity. At a closer scale, horizontal surfaces are embedded within the cylinders at varying heights, allowing the facade to be leaned against or sat upon. At night, warm light seeps through the curved gaps, offering passersby fleeting glimpses of the lively interior beyond.
The rear facade opens fully toward an adjacent park lawn. Here, the boundary between inside and outside dissolves: interior tracks extend outward, allowing tables and chairs to slide effortlessly into the landscape. A subtle push is all it takes for the café to expand into the public green space.
Across both the facade and interior, a series of recurring geometric elements — dynamic curves, circular metal components, four-point star display racks, and inverted triangular linear lights — appear in varying forms. All originate from the brand’s visual identity system and are carried consistently into space, forming a strong and coherent geometric impression


































