Not a Rural House highlights an Italian regulatory paradox. An old crumbling barn to be demolished constrains the shape and height of the new house, forced into the outline of the old ruin. The result is a “fake,” a contemporary home with the appearance of a historic one.
Memory and history are thus reduced to a blind reiteration of traditional façade finishes or ratios, typical of a time gone by and offspring of abandoned building techniques. If regulations impose a fake rural house, a non-rural house indeed, dressed up in the costume of tradition, architecture has the task of declaring its true nature, unmasking the “ make-up ” of forgery.
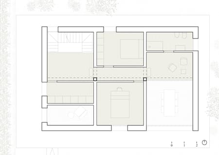
Inside, the paradox is revealed, exhibiting the reinforced concrete and timber frame, manifesting the contemporary nature of the intervention. History is then echoed, not through appearance, but rather in recovering the typical Palladian ratios and spatiality of Venetian Villas. The modular rooms and 2+3=5 proportions pace the house's interiors, ruling the composition.
The domestic environment is thus rhythmed by the structure's seriality and the dynamic interaction between volumes and voids, visual diagonals, and spatial sequences. Sitting in the living room ascending the stairs, or overlooking the double height, the rural landscape is rediscovered, framed on selected axes to picture the countryside.
In the meantime, a grazing light washes the walls and ignites the vibrant tones of the wood, warming the atmosphere and welcoming the ever-changing natural landscape. Mimicking the contrast between tradition and contemporary, between appearance and truth, matter exists in the antithesis between the “finished” and the “unfinished,” matching the rough structure with timeless herringbone parquet flooring.
Not a Rural House does not give up on the rural idea of slow living, timed with the seasons, yet it represents a provocative statement toward landscaping legislation, transforming its boundaries and contradictions into a design and critic opportunity.





























.jpg?w=450&q=75&dpl=dpl_EMk2xYEuFpBx5FJ4NinA72u1QpeJ)
.jpg?w=450&q=75&dpl=dpl_EMk2xYEuFpBx5FJ4NinA72u1QpeJ)
.jpg?w=450&q=75&dpl=dpl_EMk2xYEuFpBx5FJ4NinA72u1QpeJ)
