Studio 10 has designed a set of experimental water sports support buildings for Nerve Lab on Double Happiness Island in Zhangzhou, Fujian Province. The project is an integrated facility combining light cultural tourism, water sports, and community services, aiming to provide retail, casual dining, small-scale exhibitions, stepped public seating areas, and public restrooms for sports enthusiasts, visitors, and nearby residents.
Double Happiness Island was formed by filling reclaimed rock and earth excavated during local development and construction. It is located in the eastern waters of Zhangzhou Development Zone, facing Zhangzhou Port, downtown Xiamen, and Gulangyu Island to the north, and overlooking the Greater and Lesser Kinmen Islands and open waters to the east. The island is surrounded by sea on all sides and connected to the mainland only by a single road bridge. Its native landscape is dominated by waist-high silvergrass, interspersed with exposed granite bedrock. Apart from a pasture and a coastal campsite, most of the island remains undeveloped, presenting an unadorned sense of natural wilderness.
This site of "historically-blank land" poses both a design challenge and an opportunity to engage with regional traditions through a contemporary lens. On this man-made island—a testing ground for new spatial ideas—the design seeks to preserve the island's distinctive atmosphere of ease, informality, and even gentle desolation, while establishing a subtle dialogue with the deep-rooted architectural culture of southern Fujian(Minnan). It aims to deliver practical, accessible service spaces for athletes, tourists, and the surrounding community, fostering a deeper connection among people, the sea, and local heritage.
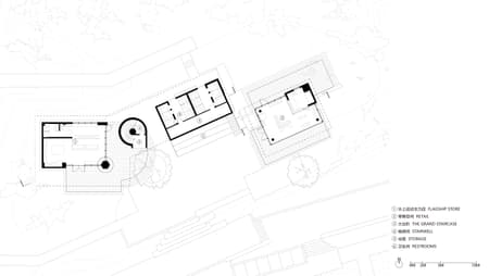
The building cluster is arranged along the inner bay waterfront, adjacent to the stand-up paddleboard dock and backed by the non-powered play area. The overall layout references the traditional Minnan settlement pattern of "qian cheng hou cuo" (courtyard in front, dwelling behind), opening toward the water to the south. Spaces are organized around a central entrance plaza and public stepped seating area (aka. The grand staircase) —functioning as a modern reinterpretation of the traditional "cheng(courtyard/semi-public space)"—with a two-story sports flagship store to the west, a single-story retail pavilion to the east, the non-powered play area to the north, and the waterfront dock to the south. The grand staircase serves as a place for spectating, waiting, and resting, and also offers the public a quiet platform for contemplation and pause by the sea.
The two-story sports flagship store, the central grand staircase, and the cylindrical spiral stairwell inserted between them are unified under a continuous large overhanging canopy. The single-story retail building to the east features its own independent canopy. Inspired by the distinctive "swallowtail ridge" of Minnan architecture, and echoing the curved,streamlined surfaces of the paddleboards displayed within the space, the canopies lift slightly at the corners, creating shaded, semi-outdoor gray spaces that provide shelter from island sun and rain; their varying cross-sections also facilitate structural cantilevering and allow soft natural light to penetrate deep.
The eastern retail shop is fitted with full-width foldable floor-to-ceiling glass doors that fully open, drawing sea breezes indoors and blurring the boundary between inside and outside. At the corner of the western flagship store is a double-height paddleboard display area; a cylindrical spiral stair nestled between the grand staircase and the building provides access to a second-floor outdoor viewing deck, an indoor gallery, and the upper platform of the grand staircase at mezzanine level. Auxiliary functions such as public restrooms, open washbasins, and storage are integrated into the low, dry base of the grand staircase, easily accessible from both the public plaza and the non-powered play area.
The buildings are primarily constructed in raw concrete, emphasizing a rugged and understated texture that echoes the island's primal geological character. At key structural elements and circulation spaces, however, colored glazed tiles are introduced. The choice of colors and patterns draws inspiration from traditional materials and craftsmanship found in local Minnan residences, serving as a response to the region's historic use of encaustic ceramic tiles. Specifically, the stairwells are clad in glazed tiles ranging from deep to light grayish green. At the corner of the anchor retail space, a setback column—drawing geometric inspiration from traditional local brick pagodas—is constructed with yellow-white glazed tiles; each setback level features a distinct tile pattern, while the base naturally functions as a bench. At the corner of the grand staircase, a hollow monumental column supports an expansive cantilevered canopy and is wrapped in medium-yellow glazed tiles. Meanwhile, the service core of the eastern retail pavilion—housing the kitchen and cashier area—is finished with blue-and-white patterned tiles. Beyond their cultural and aesthetic references, the intentional variation in tile colors and patterns also serves a practical purpose: on an island lacking conventional street frontages, these chromatic and ornamental cues of the material help users establish orientation, enhancing spatial legibility and reinforcing wayfinding logic.





























