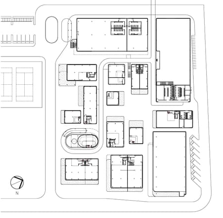
"My Front Yard" is a retail community that utilizes space that is traditionally neglected in commercial architecture. By prioritizing roof tops, open-air circulation and neighborhood planning, the project avoids the monolithic "big box" retail approach for decentralized, low-rise pavilions that invite exploration and curiosity.
Situated in front of a hillside in Phuket, the layout of My Front Yard utilizes a non-linear arrangement of buildings. By breaking the retail program into smaller blocks, Architectkidd created a series of courtyards and landscaped pockets. Ground-level paths along with an elevated bridge encourage users to adopt a leisurely and pedestrian environment. Voids and laneways between buildings and the inclusion of green "islands" also facilitate natural ventilation, a necessity for tropical climates.
Yellow Rooftops and Pathways An elevated bridge serves as the project's artery, weaving between white buildings to connect various retail zones and circulation. Roofs are often neglected spaces in commercial architecture - at My Front Yard, rooftops are reimagined as walkways, platforms and event spaces. The yellow bridge creates a high-contrast dialogue with the neutral white structures and the surrounding green landscape. The bridge also provides a second level of engagement, allowing visitors to experience the community "neighborhood" from multiple perspectives while offering shaded walkways and laneways below.
The retail units are designed as clean, white volumes with rounded corners and shaded storefronts. This softened geometry creates a sense of movement and prevents the architecture from feeling imposing. Expansive white walls function as a clean backdrop for bold graphic signage, allowing individual brand identities to be expressed without cluttering the site.
Architectkidd’s focus on the design of My Front Yard in Phuket is to create effective social and communal spaces by focusing on the transitions between public and private areas. By treating the entire site as a "front yard", the architecture serves as a framework for social interaction, where every day journeys - the walk across the bridge, the view of the mountains, and the discovery of a new café or eatery - is as important as the retail destination itself.















