Museum Of Broken Relationships is a renovation and a transformation of a historical Chiang Mai building into a museum space. The building, originally a shop and a warehouse built in 1904, had already been altered various times.
In these renovations, many of the original features have disappeared, but what is left and what we aimed to preserve was the original craftsmanship spirit; the main remaining features and materials are the usage of a typical, very dark wood contrasted with bright plaster surfaces and handcrafted details.
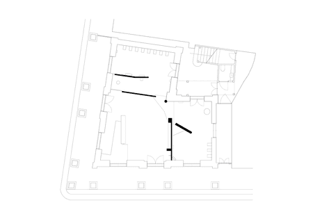
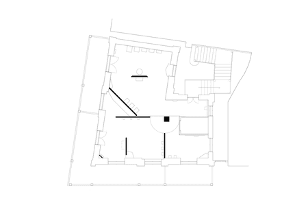
To adapt to the new function, we preserved the original layout as much as possible and made interventions at the points where the rooms intersect to make the flow between the spaces seamless and help to display the objects.
With the interventions, we introduced new forms and used materials very similar to the original ones in order to blend as much as possible with the space. For the object displays throughout the museum, we used the local wood and gave it a twist by enhancing its texture with a different color.
The only space with a more contemporary spirit is the entrance/gift shop area, where a stainless steel column and interior roof sign the entrance to the newly opened museum space, while the gift shop furniture is developed to display various types of museum merchandise. All the environmental graphics perfectly integrating with the space are developed by DU Studio.



























