BAM PR Logo
House
Main Ridge House
2025

This timber-framed house, designed as a second home for longstanding Sydney clients, complements their newly acquired vineyard at Main Ridge. Rooted in a 20-year relationship, the project is rich in personal connection and shared vision.

Hands-on and deeply involved, the clients helped select finishes and contributed meaningfully throughout the process. Our collaboration began with the design of their primary residence in Portsea — a project that lingered in concept for years — and continued through a series of timber-framed sheds, platforms, and pergolas, which sparked their passion for timber.

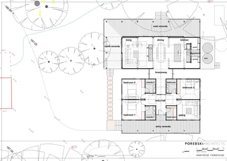
They sought an authentic country residence with minimal site disturbance, located where an existing house once stood. The home comprises two pavilions: the rear, facing the vineyard, houses the kitchen and living spaces; the front contains bedrooms, bathrooms, a media room, and a mudroom. Both structures are raised, with the living pavilion cantilevered over a bushfire wall, creating a light, floating form.

The living pavilion showcases exposed timber columns, beams, and collar-tied rafters beneath ship-lapped timber ceilings and walls, with expansive windows and glazed doors. In contrast, the bedroom pavilion features tongue-and-groove linings and steep raked plasterboard ceilings. Externally, both pavilions are clad in ship-lapped boards. All timber, including structure, lining, and flooring, is local blackbutt.

The house reveals a series of volume shifts — from the low timber-lined veranda and entry hall with skylights, to a narrow linkway, and into the soaring ceiling of the living pavilion. The rhythm of exposed collar ties continues into a covered northern terrace, blurring indoor and outdoor space.

Verandas draw from Australian vernacular architecture, softening the home’s scale and grounding it in its landscape.

Expand full description
Main Ridge House
© Jack Lovel
Main Ridge House
© Jack Lovel
Main Ridge House
© Jack Lovel
Main Ridge House
© Jack Lovel
Main Ridge House
© Jack Lovel
Main Ridge House
© Jack Lovel
Main Ridge House
© Jack Lovel
Main Ridge House
© Jack Lovel
Main Ridge House
© Jack Lovel
Main Ridge House
© Jack Lovel
Main Ridge House
© Jack Lovel
Main Ridge House
© Jack Lovel
Main Ridge House
© Jack Lovel
Main Ridge House
© Jack Lovel
Main Ridge House
© Jack Lovel
Main Ridge House
© Courtesy of Porebski Architects

Related you may like