BAM PR Logo
House
LP115 House
2023

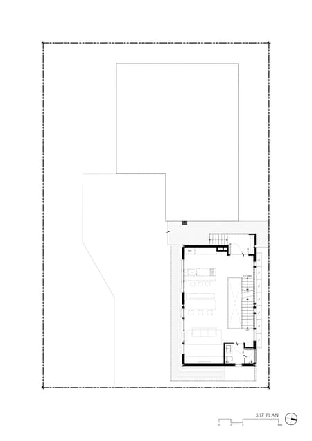
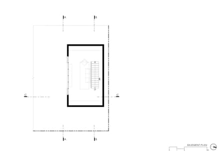
The design of the LP 115 house started with the need for a small family to build a new house on the same plot of land as their original house, so there was a limitation on construction space. The designer decided to utilize the space of the existing swimming pool structure and cover it with a new steel structure of the house, which is lightweight and easy to construct. In addition to saving construction space, it also saves on the cost of filling in or demolishing the original swimming pool.

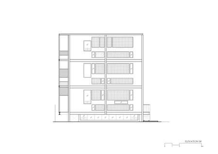
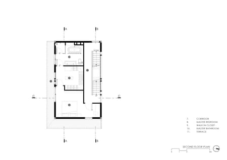
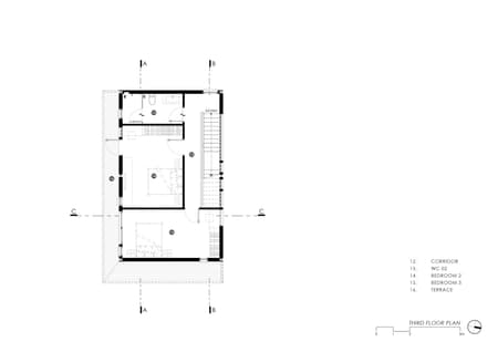
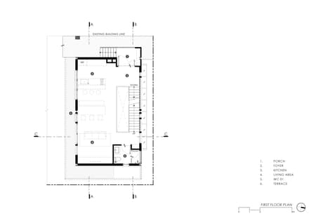
In order to have enough space for living, the house is designed as a 3-story building with the first floor elevated above the ground for the main living area, and the basement, which was originally the swimming pool, is transformed into an entertainment room, while the second and third floors are private areas for each member of the family. Because of the height of the building, the facades receive a certain amount of sunlight, which may cause problems with heat. Therefore, all functional areas are placed inside, surrounded by corridors for future maintenance, as well as for reducing heat from living spaces.

The facades are divided into smaller portions to dissolve the building’s scale; only three design languages are applied to the facade: opaque, transparent, and translucent. Therefore, the facades can be opened and closed to meet the residents' needs; they are able to protect the building from rain and sunlight while also allowing natural ventilation to flow through. The facades, therefore, act like both curtains and insect screens of typical Thai houses. The interior of the house receives natural light during the day, and at night, the building is lit from the inside out. The house is the architecture that changes color according to the color of natural light at different times of the day.

Expand full description
Download
Request Press Kit for Print
LP115 House
© Spaceshift Studio
LP115 House
© Spaceshift Studio
LP115 House
© Spaceshift Studio
LP115 House
© Courtesy of Junsekino Architect and Design
LP115 House
© Spaceshift Studio
LP115 House
© Spaceshift Studio
LP115 House
© Spaceshift Studio
LP115 House
© Spaceshift Studio
LP115 House
© Spaceshift Studio
LP115 House
© Spaceshift Studio
LP115 House
© Spaceshift Studio
LP115 House
© Spaceshift Studio
LP115 House
© Spaceshift Studio
LP115 House
© Spaceshift Studio
LP115 House
© Spaceshift Studio
LP115 House
© Spaceshift Studio
LP115 House
© Spaceshift Studio
LP115 House
© Courtesy of Junsekino Architect and Design
LP115 House
© Courtesy of Junsekino Architect and Design
LP115 House
© Courtesy of Junsekino Architect and Design
LP115 House
© Courtesy of Junsekino Architect and Design
LP115 House
© Courtesy of Junsekino Architect and Design
LP115 House
© Courtesy of Junsekino Architect and Design
LP115 House
© Courtesy of Junsekino Architect and Design
LP115 House
© Courtesy of Junsekino Architect and Design
LP115 House
© Courtesy of Junsekino Architect and Design
LP115 House
© Courtesy of Junsekino Architect and Design
LP115 House
© Courtesy of Junsekino Architect and Design
LP115 House
© Courtesy of Junsekino Architect and Design
LP115 House
© Courtesy of Junsekino Architect and Design

Related you may like