The Břetislav Kafka Library in Červený Kostelec transforms a historic former inn into a bright, flexible, and welcoming public library. The design works with the building’s original architecture, combining tailored interiors, playful furniture, and a distinctive colour palette to create a space that is both functional and inviting.
In 2022, the town of Červený Kostelec commissioned the redesign of the Břetislav Kafka Library, whose furnishings had reached the end of their service life. During the design process, it became evident that the building required a more extensive intervention, resulting in a complete renovation including thermal insulation.
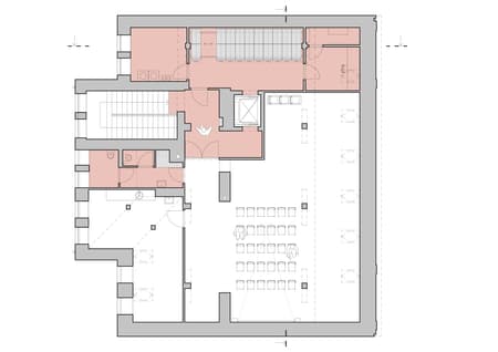
The library occupies a historic former inn, whose layout imposes spatial constraints. Rather than altering the structure, the project engages directly with the existing architecture, shaping an interior tailored to the building while meeting the contemporary requirements of a public library. The overall concept focuses on improving spatial clarity, daylight, and visual coherence, while maintaining the familiar atmosphere typical of a local library.
Special attention was given to the entrance area to clearly communicate the building’s public function from the street and to improve access to the courtyard garden. The main entrance is accessed through a passageway fitted with new, generously proportioned gates: metal gates facing the street act as a visual marker, while translucent gates facing the garden allow daylight to penetrate the passage. A large-format window placed just beyond the street entrance provides a direct visual connection to the library interior. The passageway was cleared, with original pilasters exposed and bulletin boards inserted between them to create a small exhibition area.
The project includes a comprehensive furniture concept. Neutral grey built-in furniture lines the perimeter walls, while the centre of the rooms is defined by mobile, multifunctional red furniture elements incorporating storage, seating, and integrated lighting. Mounted on wheels, these elements can be repositioned to free up space for public events. In the adult section on the ground floor, the furniture is arranged in regular rows, while in the children’s section on the upper floor, the shelving adopts playful forms and varied heights corresponding to different age groups. The children’s area is complemented by a textile canopy by artist Linda Retterová, created during a workshop with local children, which improves acoustic performance while allowing soft, diffused light to pass through.
A distinctive colour palette unifies the new interventions throughout the interior. Shades of pink and red appear in the entrance passage, on the floors, and in the furniture, reinforcing the welcoming atmosphere of the library while referencing the town’s name and its landmark red church. In contrast, stainless steel elements introduce a restrained elegance and underscore the library’s role as an important municipal institution.
“The Břetislav Kafka Library has played an important social role in Červený Kostelec for more than a hundred years. When it became necessary to replace outdated equipment, the library decided to undertake a generous renovation of its premises with the ambition of creating a lively cultural and creative center. After careful selection, the library approached architects from the Papundekl studio, who inventively opened up and connected the library spaces into a single compact whole. The material solution for the spaces and their furnishings reflects this. The library thus becomes a living organism, capable of responding to the changing demands of its users, while also representing the open approach of the town of Červený Kostelec.”





































