A primordial kindergarten, shaped by the spirit of the place and the emotions of the child. A space both protected and dreamlike, safe yet open to wonder. A small village, an abstract ensemble of pyramidal volumes joined by open courtyards. A vermilion school, warm and welcoming, rising among trees, nestled in green.
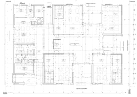
Kinder Rain emerges from the memory of the landscape, reinterpreting the archetype of the Casone Veneto: the vernacular dwelling of farmers and fishermen, known for its distinctive thatched roofs. Its form identifies three classrooms, standing out as volumetric exceptions within a continuous terracotta skin, evoking the age-old tradition of clay construction and pitched tile roofs. At the base, a soft, pigmented concrete bench gently meets the ground, becoming both urban furniture and a playful threshold between the didactic and the spontaneous, the indoor and the outdoor. The volume, seemingly compact, conceals a play of solids and voids. Each classroom mirrors itself outward, extending into outdoor learning patios, protected and framed by the surrounding courtyard.
Like houses around a village square, the classrooms also face inward, engaging through a central agorà, a shared space for play and informal learning. Here the gaze drifts toward the garden, crossing classrooms and patios, drawing continuous relationships between spaces.
Eventually, it turns upward, expanding toward a zenithal skylight. The sun marks the passing of time like a sundial, grazing the textured wood ceiling; a quiet, material echo of the thatched roofs of the Casoni.
The school thus appears as a constructed landscape, a synthesis of memory and invention, of rural archetypes and contemporary pedagogy.
An imaginative village, rooted in place and capable of igniting the fantasy of its smallest inhabitants.












































