Khai Sơn Penthouse by Idee Architects: Vertical Connectivity for a Young Family
Idee Architects has designed Khai Sơn Penthouse by merging two adjacent penthouses into one continuous living environment for a young family. The project creates a vertical spatial journey that links double-height voids, balconies, and diverse living areas into a cohesive home.
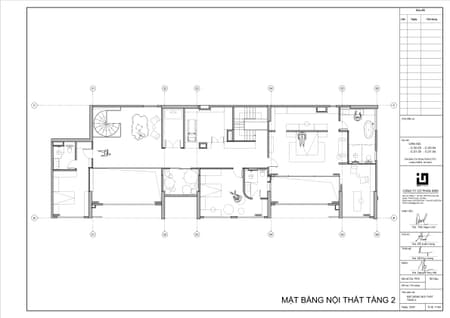
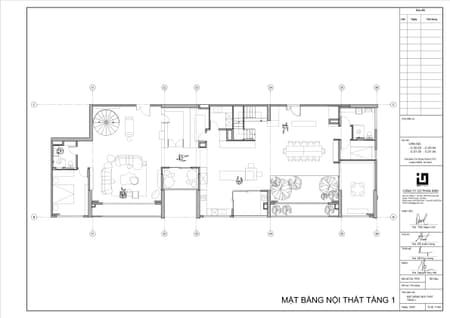
A central circulation spine defines the layout, dividing the penthouse into two parts: primary functional nodes on one side, and complementary areas on the other with expansive views of the city. At both ends, a rectilinear stair and a sculptural spiral stair connect the two floors, allowing fluid movement across the residence.
Two large double-height voids serve different purposes: one becomes a generous living room, the other an indoor garden extending from the dining and kitchen area into private bedrooms. Vertical continuity is emphasized through linear forms in the living room and tall trees in the garden, creating an open, playful, and light-filled atmosphere for children and family members alike.
The design adopts a modern architectural language with bold, clean lines. Rough travertine stone surfaces contrast against metallic elements, generating a balance of raw texture and refined detail. Khai Sơn Penthouseembodies a sense of openness, creativity, and warmth—an elevated home that celebrates both verticality and family life.
.jpg?w=450&q=75&dpl=dpl_94TsexuRDUkra7f5K7qQDy7gfz8a)

































 copy.jpg?w=450&q=75&dpl=dpl_94TsexuRDUkra7f5K7qQDy7gfz8a)
 copy.jpg?w=450&q=75&dpl=dpl_94TsexuRDUkra7f5K7qQDy7gfz8a)

