House CR was born from the unlikely meeting between experience and the will to start over. The clients, a couple in their 80s, decided to build a new home. That alone inspired us.
The site, on the southern coast of São Miguel Island, is defined by basalt boulders, dry vegetation, and irregular topography. Among rocks and brush, the house lands lightly, like a large wing hovering over the landscape. The idea of the wing came naturally. The owner was a former Air Force pilot during the colonial war, and the design of the house became a subtle metaphor for that past life.
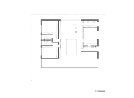
The architecture unfolds on a single level—simple and transparent—designed for a calm and functional way of living. A concrete canopy extends over glazed façades that open the house to the garden and the landscape. At the center, a tropical courtyard brings the outside in, ensuring natural light, cross ventilation, and a constant connection with nature.
The interiors are lined with wood, warming the atmosphere and reinforcing the presence of natural elements in daily life. Everything is clear, accessible, and continuous. From any point in the house, one can see the exterior, the courtyard, and the horizon.
House CR is an essential home, designed with serenity and honesty, without superfluous gestures. Only matter, light, and air—in just the right measure for those who know how to live slowly.














































