House CO, located in Santo Domingo, Chile, was commissioned by a couple looking to settle on the coast with a versatile and flexible home. The design sought to balance comfort for daily use by two people with the capacity to comfortably accommodate ten occupants during certain periods of the year, prioritizing functional flexibility.
One of the main challenges was the site: long, narrow, and virtually flat, the brief was to capture the sea views despite its distance from the coast. The solution: to semi-bury the house halfway up the level and attach it to the sides, allowing for the addition of an additional floor. This strategy increased the use of space, protected from the coastal wind, and utilized the maximum height allowed on the site. It also enabled the creation of interior patios, crucial for ensuring the entry of natural light into all areas and spaces of the house.
A standout architectural element within the home is the staircase, which transcends its basic function to become a "light box." This structure visually and programmatically connects all levels, from the underground parking lot to the second floor, functioning as an articulating axis.
The second level is presented as a compact, clean, and light volume that appears to float above the glass and concrete base of the first floor. This level projects outward with a large window that frames the views of the sea and its surroundings, making them the main focus of this space.
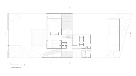
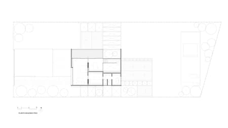
The layout of the project is organized on three levels: the basement houses the parking and service areas; the first floor is used for common areas and connects to the courtyard, promoting interaction and recreation; and the second floor is exclusively for the master bedroom, offering privacy and the best views of the sea.
In terms of materials, Casa CO combines the solidity of concrete, used in the basement and first floors, with the lightness of the wood-clad metal structure on the second floor. This choice creates a harmonious contrast and contemporary aesthetic in a very traditional setting. The large glass facades are a distinctive feature, designed to maximize the entry of natural light during the day. At dusk, these glass surfaces transform into veritable mirrors, reflecting the natural environment and surrounding vegetation, integrating the house even more into its coastal landscape.

















