Located in the dense urban core of Seoul, Hotel Myeongdong Station takes the internal program itself, rather than the external context, as the starting point of its form-making. The spatial density and functional integration of the micro-accommodation units determine the overall configuration and formal principle of the building. This strategy establishes an autonomous architectural language, independent from the site or surrounding conditions.
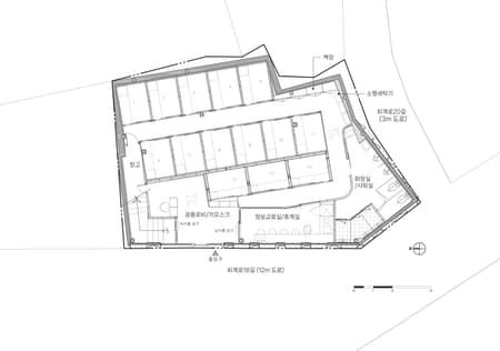
The project began by defining the form of a compact modular unit integrating bed, storage, table, and sanitary functions. Each unit was designed with a focus on spatial efficiency and functional hierarchy, resulting in two variations of a similar composition, and a total of twenty-nine units are arranged repetitively along a central corridor. Circulation between the units and communal spaces was organised to optimize the experience of the stay, while the repeatable pattern allows function and form to merge into a single systemic logic.
The initial design originated from AI-based formal generation experiments, though these were used not as autonomous shape proposals but as visual tools to test volumetric possibilities accommodating the program. The actual design process began with programmatic variables such as lighting, sleeping orientation, and storage circulation. Consequently, the completed envelope is not an ornamental addition but the result of the repetition and stacking of units.
Each accommodation module is a compact living unit integrating functions for sleeping, resting, storage, and working, and the headboard panel, derived from repetitive patterns inspired by traditional motifs, extends beyond decoration to mediate light and views. The building envelope consists of curved ABS panels, arranged through rotation and repetition of two types to create a rhythmic façade. Each panel was fabricated using CNC-machined dies based on 3D modeling, then vacuum-formed, fire-retardant finished, and mounted onto an aluminum frame.






























