After the opening of the HAWE plant in Kaufbeuren in 2014, the first expansion was completed at the beginning of 2021: an extension of the front building by an additional 1,000 square meters providing space for 70 employees at the company, which specialized in hydraulic systems. The new building, completed after just one year of planning and construction, houses staff from the areas of marketing, development, and experimentation who had previously worked at a site in Altenstadt, which is now closed.
The extension marks the office building even more clearly as a representative area and introduction to the expansive ensemble of production halls. The new building is attached to the existing building, which required some architectural interventions there as well. In the spirit of sustainability, the existing front wall was detached and reused, and the extensive green roof was also expanded.
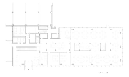
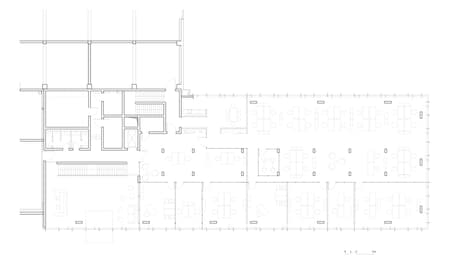
The aluminum post and mullion façade with its extensive openings allows for a high degree of transparency and permeability in the interior spaces, and together with the glass walls continues the main feature of the existing building. External sun protection and ventilation flaps that can be opened manually ensure a comfortable working environment. The office spaces that can be used quite flexibly allow for different forms of working: from communicative open spaces to concentrated individual work or a private conversation in a phone box.
The existing factory halls are designed with possible future expansion in mind. Up to now, however, changes in use and a compacted placement of machinery were possible within the existing structure, designed for robustness and maximal flexibility, and it was possible to carry the technical systems forward within the open concrete construction.






















