The house is a characteristic expression of the firm’s design philosophy-marked by simplicity and modesty in the use of materials, textures, finishes, and furnishings. Positioned as a largely linear volume on an elevated site, the form refrains from overpowering its context. Instead of exploiting the site’s height advantage over the surrounding terrain, the architecture integrates a laterite wall that functions both as a compound wall and the main building skin along the eastern elevation. This wall stretches across the larger volume that houses the common areas.
The approach is from the south, where the porch and front elevation are finished in a cohesive palette of laterite stone, grey cement plaster, and white-establishing a grounded, earthy character. The sloping tiled roof ties the form to vernacular roots while maintaining a minimal expression. One is welcomed by a floating slab sit-out adorned with tropical plants and a single wooden bench-a quiet gesture of hospitality.
The elevated approach is echoed again in the access to the porch terrace, where additional seating is provided - offering a serene, elevated view of the surroundings and reinforcing the home’s gentle engagement with its site. This layered use of levels subtly enhances the spatial experience without visual noise.
Entry through a modest doorway leads into the main volume, flanked by the laterite envelope on the east and sliding glass openings that draw in light from the eastern setback. The core living spaces-formal living and dining - flow linearly and culminate at the enlarged kitchen at the northern end, reconfigured to accommodate more storage and functionality as per the evolving needs of the family.
To the right of the main axis are the private zones-bedrooms that open out to the western side, divided by a family living area and a staircase leading to the first floor. The planning is intentionally open, interrupted only when privacy is required. As per the client’s wishes, the kitchen remains partially screened from the main living area, maintaining visual calm in the open layout.
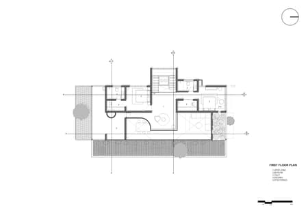
On the first floor, the landing overlooks the double-height main volume and opens into a casual sitting area. This level also houses two slightly larger bedrooms and a utility room. The material palette remains earthy and restrained-cement-finished flooring, muted grey monotone tiles, and subtle accents of Jaisalmer stone in the family living area and upper-level sitting nook add warmth and character without clutter.
Large, thoughtfully placed openings and the perforated eastern envelope ensure natural cross-ventilation and bring in dynamic patterns of daylight throughout the day. The house breathes slowly and intentionally-never asserting itself too loudly but gently inhabiting the slope it sits on. Through careful use of materials, a grounded spatial plan, and deep respect for site and light, the house becomes an entity in quiet harmony with its natural setting.
The house is conceived as a calm, inward looking dwelling that negotiates between the built and the unbuilt through a layered architectural envelope. Rather than asserting itself as an object on site, the design responds to the sloping terrain and tropical climate by shaping space through section, light, and ventilation.
Entry into the house is deliberately modest, unfolding into a linear interior sequence anchored by a double height living volume. This primary space becomes the environmental and social core of the house, visually and spatially connecting the ground and first floors. The planning remains largely open, allowing living, dining, and family spaces to flow seamlessly, with enclosure introduced only where privacy or functional separation is required. The kitchen, while integrated within the main volume, is partially screened to maintain visual calm within the open plan.
A perforated laterite screen along the eastern edge acts as a breathable threshold between inside and outside. Read clearly in both plan and section, this layer filters daylight, controls privacy, and facilitates cross ventilation, allowing the interiors to remain naturally lit and passively cooled throughout the day. Large openings and sectional voids reinforce this environmental strategy, enabling air movement across levels and drawing light deep into the house.
Private spaces are positioned along the quieter western edge and are mediated by a family living area and staircase, ensuring a gradual transition from public to private realms. The staircase is treated as a spatial connector rather than a divider, reinforcing continuity across floors. On the first floor, the landing overlooks the double height space and opens into a casual sitting area, maintaining visual connection and spatial generosity.
Materiality is restrained and tactile, allowing space and light to take precedence. Cement finished floors and muted grey tiles form a neutral backdrop, while selective accents of yellow Jaisalmer stone introduce warmth and subtle hierarchy without visual clutter. Interior, architecture, and landscape are conceived as a single, continuous narrative rather than separate identities.
Through controlled openness, sectional depth, and a porous envelope, the house breathes slowly and intentionally—settling gently into its site while offering interiors that are calm, grounded, and deeply responsive to climate, light, and everyday life































