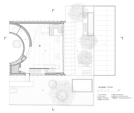
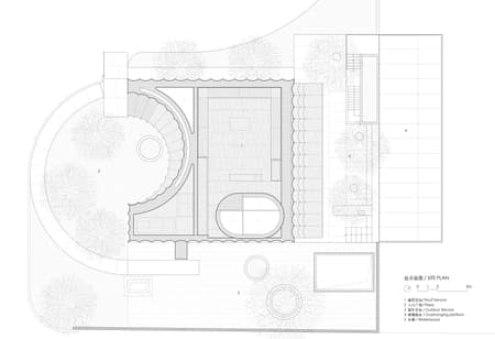
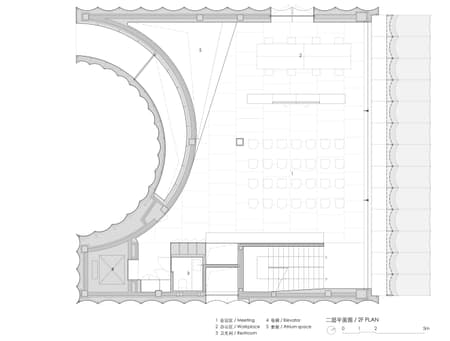
This community art museum is a transformative renovation based on an unfinished project, originally consisting of a completed underground parking garage and a planned three-story above-ground structure. To meet the museum’s functional requirements, part of the underground space was converted into exhibition halls and seamlessly connected to the levels above. This project represents an "inside-out" creation: the evolution of internal needs reshaped the original structure and facade, allowing it to metamorphose into an entirely new entity while strictly adhering to the planning prototype of "a cube truncated by a right cylinder" and the constraints of the existing subterranean structure. Facing a river and adjacent to a major urban artery, the side of the building toward the city is "peeled open," creating a shell that is simultaneously independent and open. The entire exterior is clad in curved stainless steel panels. This design utilizes the material's inherent tension to eliminate the need for internal purlins, resulting in a pure, rhythmic aesthetic. As light hits the curved metal, it produces delicate reflections that lend a sculptural tenderness to the building. On the north facade, the perforated panels filter the light; from the interior, the urban landscape is transformed into a blurred, abstract scroll. The second-story facade is lifted at a specific angle to act as a structural tie for the first-floor canopy, creating a profile that evokes the sheltered feeling of traditional eaves. The entrance is tucked into a semi-circular concave, utilizing the centripetal nature of the form to better connect with the community. Natural light pours in through a top crevice, illuminating a three-story "spatial canyon" that guides visitors through a mental transition from the community to the world of art, emphasizing a palpable human scale. The ground floor opens toward the north, merging with a cantilevered platform to dissolve the boundaries between the building and the city. At the building's corner, a vertical void connects all three above-ground levels, not only resolving the awkwardness of the original sharp-angled space but also creating a spiritual atmosphere as light descends from above. The staircase climbs along the sidewall, with key fragments of its path visible through the perforated panels, showcasing the building's internal vitality to the city. To establish a connection between the subterranean galleries and the world above, portions of the structural slabs were removed, introducing natural light and landscape into the basement. This integrates the above-ground and underground spaces into a continuous, fluid whole. Art should not be confined to "temples" but should become an integral part of daily life. Through its precise and clear order, this museum carves out a serene spiritual sanctuary within the bustling modern metropolis.









































































