Awards: nominated as one of the German entries for EUmies Awards 2026.
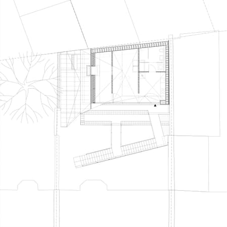
Located in the inner courtyard of an early 20th-century apartment building, the project contributes to the contemporary condition of densifying the city from within. Positioned in a hidden, inner urban courtyard, the project reinterprets the traditional European Stadthaus, introducing a form of living that balances density, sustainability, and spatial quality.
In response to the increasing need for compact yet high-quality housing, the building offers five versatile residential units and a total 200 m2 living space. These range from compact studios to spacious, double-height apartments, accommodating diverse lifestyles and promoting a flexible model for urban living.
The design meets the stringent KfW 40 energy efficiency standards, reflecting a strong commitment to environmental performance. A hybrid construction system was chosen to address both ecological and structural demands: insulated masonry blocks form the external envelope, cross-laminated timber is used for ceilings and interior walls, and in-situ concrete is employed for the staircase core. This material combination creates a thoughtful balance between thermal efficiency, structural performance, and environmental responsibility.
The staircase is located on the outside of the building, which reduces the amount of heated space needed. The courtyard serves not only as a circulation space, but also as a place for gathering.
The architectural language of the building plays with contrast. The south façade is fully transparent and continuous, opening the interior to light and creating a fluid relationship between inside and outside. In contrast, the remaining façades are more closed and tactile, using raw, robust materials that reflect the quiet intensity of the courtyard setting. Inside, the atmosphere shifts. Warm wood surfaces and natural stone flooring create a calm, intimate environment, offering a counterpoint to the more austere exterior. This inner softness fosters a sense of retreat within the dense urban fabric.
The project is one of the German entries for the EUmies Awards 2026.































