Folded Rooms Garden is an experimental residential intervention located within a compact urban pocket in Bandung, Indonesia. The project challenges the conventional reliance on vertical partition walls, proposing instead a fluid sequence of living environments seamlessly integrated with the landscape.
A morphological concept of the continuous fold, the architectural narrative is defined by formal minimalism and a tectonic act of folding. Conceiving the architecture as a continuous spatial continuum, the circulation, floor plates, ceiling, and roof form a single, monolithic plane. This plane is manipulated—folded and sandwiched—within the site, blurring the distinction between the built form and the void. Engaging with the dialectic of solid and void, the design utilizes elevation changes rather than walls to delineate zones of privacy. It creates a spatial sequence and a sectional play
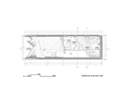
The Threshold: The entrance is intentionally obscured by a suspended planter, functioning as a "living" porous threshold that transitions the visitor from the chaotic urban context into a secluded sanctuary.
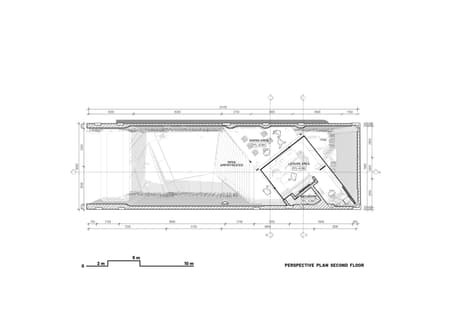
The Upper Fold (Public/Semi-Private): The elevated plane houses a tatami-style bedroom adjoining the living and dining areas. This zone acts as a panoramic extension of the front garden, characterized by open sightlines and cross-ventilation.
The Lower Fold (Private/Sunken): In contrast, the ground level features sunken sleeping quarters. This subterranean volume opens directly onto a private pool and a semi-outdoor bathroom, framed by a shaded bamboo grove that creates a sense of introverted enclosure.
Serving a bigger picture, this small experiment acted as an ecological urbanism of a permeable prototype. Beyond its formal experimentation, Folded Rooms Garden serves as a micro-urban prototype. By maintaining 70% permeable green area, the project prioritizes on-site rainwater harvesting—a critical response to Indonesia's dense city planning.
This small villa prototype from RAD+ar demonstrates how decentralized "pocket spaces" can be transformed into decentralized ecological nodes. It advocates for a shift in typology where private developments actively contribute to the city's hydrologic health, serving as a "green gateway" that balances architectural playfulness with environmental responsibility, which could inspire thousands of similar pocket spaces all around the scattered archipelagos nation.





























