This kindergarten is in the northern part of Japan, namely Fukahori Town of Nagasaki prefecture, a coastal town with a long history of fishing and shipbuilding. Its trace of history still lingers in the streets. The region is full of slopes, and houses are built tightly along roads. These attributes shape the quaint atmosphere of the narrow alleyways. This project intends to bring the way Fukahori has co-existed with the land into the daily lives of children.
The site has a nearly 7-meter difference in height, with a sloped terrain. The architecture turns such seemingly unfavorable conditions into an opportunity to minimize the environmental footprint and maximize play areas for children. Instead of flattening the land, the buildings are strategically positioned to follow the natural contours. As a result, the need for excavation and soil transportation is reduced, minimizing CO₂ emissions. The slopes naturally became only playground.
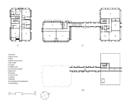
The kindergarten consists of three parts: one at the top of the slope, one at the bottom, and a connecting corridor in between. The corridor, inspired by the long, narrow streets of the town, has a large staircase and a thrilling climbing net structure for children. Children run up and down the large staircase and the mountainous playground, exploring and discovering imaginative ways to play and learn. The entire kindergarten is continuous, blending indoors and outdoors to create an environment where "play" flows in all directions.
The materiality of the exterior walls, interior finishings, and furniture all incorporate the colors of Nagasaki city. Blue reflects the port, red recalls foreign cultural influences of brickwork, and earthy tones resemble the region's historic stone-paved streets. At the top of the playground, children can spot the ocean and the townscape. In this kindergarten, children grow up by naturally absorbing the "colors" of their hometown. The kindergarten takes advantage of the unique terrain and culture of Fukahori Town, providing an environment where children can grow while interacting with nature and the town's scenery.





















