Digomi House is located in one of the new most densely populated areas of Tbilisi. The district is still being constructed and lacks some urban infrastructure, but it is in the process of development. Located at 456 meters above sea level, the building is surrounded by low-rise single-family houses, although it is bordered by closely spaced multi-family buildings. From the large stained-glass windows of the house, it is possible to see the mountainous landscapes of Tbilisi and beyond, as well as new urban development and density of the district close by.
The architectural design is based on simple, geometric shapes. The square-shaped facades are also repeated in the lines of the high stained-glass windows. The surrounding row of houses, with their light surfaces and straight lines, provide a dynamic look. The house divides the yard into two parts, which creates the opportunity for different family activities as well as separating the house from the noise of the main road. Travertine stone has been used on the facade and white aluminum frames have been added to a number of windows to highlight the architectural approach.
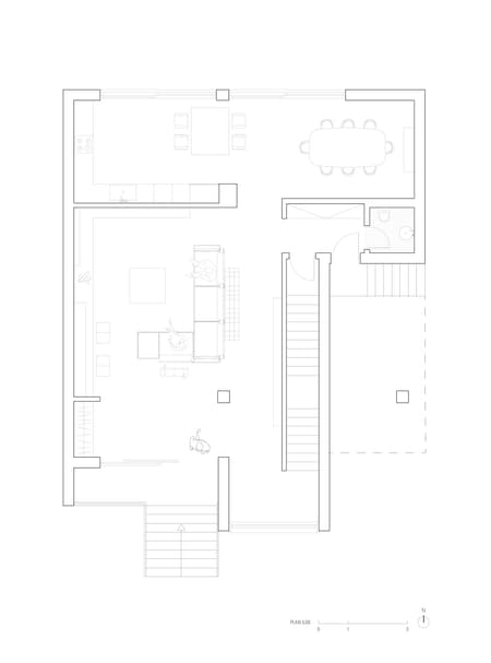
At ground level, the interior is one continuous space, where a series of compartments provide different functions and comfortable circulation. The main entrance is connected to the staircase leading to the upper floor and the living room connects to the kitchen and dining area. On the upper floor the sleeping area is arranged into three bedrooms and a study with additional storage rooms in the basement. Movement between the floors is achieved by a single staircase that runs the entire length of the house. A combination of dark and light colors is used throughout the house, balanced by textures of natural stone, wood, micro cement and ceramic tiles.
In the large living room, a corner sofa sits directly in front of the fireplace and wooden shelves. The classic Alanda Coffee Table by Paolo Piva was selected to for its reflective surface together with decorative marble panels in order to bring the interior to life. Marble is used for the kitchen wall panels and a large island creates a geometric focus that contrasts with the dark kitchen cabinets. Opposite the kitchen is a dining area, dominated by wood and from here both the green yard and the urban environment can be seen throughthe large stained-glass windows. On the second floor, the bedrooms have light-colored walls and wooden textures which create harmony and provide calm.
Most of the furniture in the interior is individually designed. Nana Zaalishvili's oak bench ‘Brick’ stands out in the living room behind the sofa, as well as a black side table ‘Element’ and two ‘W’ armchairs. The ‘Digomi House’ was created for family to provide as a restful haven in a dense area of Tbilisi.






























