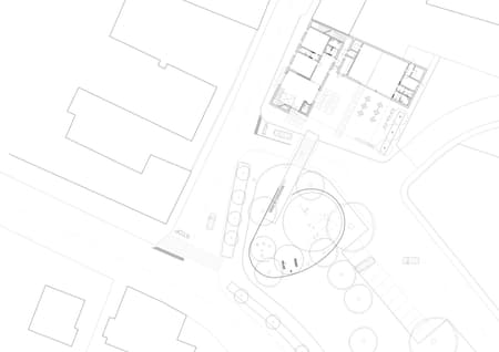
The building is located on the edge of the consolidated urban fabric of the town of Carpi d'Adige.
The two-story building, along the longitudinal axis, redefines the road axis that comes to the church, while on the shorter side, it is configured as the entrance front to the town.
The lower building stands on the opposite side of the road and, with its retreat, defines the public space, which is further clarified by the presence of the small garden.
The facades rework the classic themes of urban fronts, and undergo a progressive process of rarefaction in their development.
Expand full description
Request Press Kit for Print

© Simone Bossi

© Simone Bossi

© Simone Bossi

© Simone Bossi

© Simone Bossi

© Simone Bossi

© Simone Bossi

© Simone Bossi

© Simone Bossi

© Simone Bossi

© Simone Bossi

© Simone Bossi

© Simone Bossi

© Simone Bossi

© Simone Bossi

© Simone Bossi

© Simone Bossi

© Simone Bossi

© Courtesy of Archiplanstudio

© Courtesy of Archiplanstudio

© Courtesy of Archiplanstudio

© Courtesy of Archiplanstudio

© Courtesy of Archiplanstudio

© Courtesy of Archiplanstudio

© Courtesy of Archiplanstudio

© Courtesy of Archiplanstudio

© Courtesy of Archiplanstudio

© Courtesy of Archiplanstudio

© Courtesy of Archiplanstudio

© Courtesy of Archiplanstudio

© Courtesy of Archiplanstudio
