BAM PR Logo
Projects/South Korea/JYA-RCHITECTS/Chrome Company HQ Building
Office
Chrome Company HQ Building
2023

Diagonally from COEX, across from the old KEPCO site where Hyundai Motor Company's new headquarters is being built, there is a quiet residential area that seems like a different world. The client wanted to build an office building for the company he operates on a small piece of land measuring about 120 m2 located at the corner of this residential intersection.

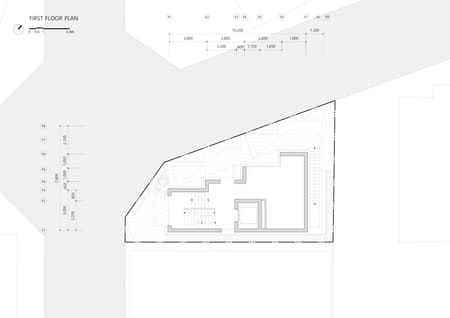
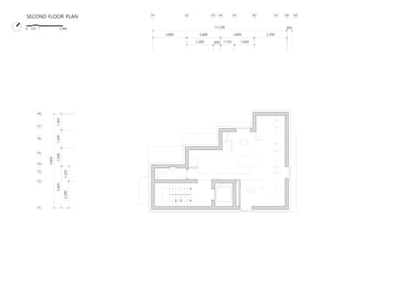
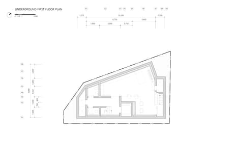
When starting the design, the plan had three main purposes. One is how to secure as much space as possible on the ground while securing two parking spaces on a small site with an odd shape. The main legal considerations for the site were how to efficiently secure parking for two cars and maintain the direct north sunrise line. From these two conditions, it is possible to construct the maximum volume in the form of an improper fraction that is narrow on the first floor and large on the top.

The second question is how to secure the right-angled floor plan requested by the client within the diamond-shaped site shape. As the maximum area was secured according to the shape of the land, the shape of each floor became a diamond. However, the client needed a plan composed of right angles that could be used more efficiently, so we created a plan that consisted of a single step along the boundary. The area of each floor lost in this process is collected and used to raise one more floor.

Lastly, considering its location at the corner of an intersection, how can a sense of visual openness on the street be secured even after construction? The site is located at the corner of an intersection, so the shape of the building has a significant impact on the openness of the city's nodes. Although it is a private property, it is also an element of the city, and a form that can secure a sense of visual openness for pedestrians was considered. Therefore, the overall area was maintained by making the lower floors thinner and securing the necessary area while moving upwards, thereby securing a sense of openness from the pedestrians' perspective.

The building was created in this way and has two major facades. One is a thin facade that becomes wider and taller as it goes from bottom to top. It is an image that provides visual and structural tension, and the goal was to maximize the tension given by the form through the use of unified materials with a rough surface. The second façade is a wide side made up of several cubes. This side is the side that faces the wider city at each corner, and in addition to the formative interest created by the cube, the expression is more diverse due to the shadows created by the movement of the sun. Thanks to this, it provides interesting images that change from moment to moment to the city and people encountered.

As mentioned earlier, we attempted to use achromatic, unified materials to maximize formal volume and tension. However, in addition to the shadow created by the volume when sunlight hits it, I wanted to create a smaller-scale expression on the surface of the surface, so I used a material that expressed roughly. I hope that it will be a small but chic building with a presence among the large and spacious land around it and the gorgeous buildings being built on it, while also being considerate of the city.

Expand full description
Download
Request Press Kit for Print
Chrome Company HQ Building
© Hwang Hyochel
Chrome Company HQ Building
© Hwang Hyochel
Chrome Company HQ Building
© Hwang Hyochel
Chrome Company HQ Building
© Hwang Hyochel
Chrome Company HQ Building
© Hwang Hyochel
Chrome Company HQ Building
© Hwang Hyochel
Chrome Company HQ Building
© Hwang Hyochel
Chrome Company HQ Building
© Hwang Hyochel
Chrome Company HQ Building
© Hwang Hyochel
Chrome Company HQ Building
© Hwang Hyochel
Chrome Company HQ Building
© Hwang Hyochel
Chrome Company HQ Building
© Hwang Hyochel
Chrome Company HQ Building
© Hwang Hyochel
Chrome Company HQ Building
© Hwang Hyochel
Chrome Company HQ Building
© Hwang Hyochel
Chrome Company HQ Building
© Hwang Hyochel
Chrome Company HQ Building
© Hwang Hyochel
Chrome Company HQ Building
© Hwang Hyochel
Chrome Company HQ Building
© Courtesy of JYA-RCHITECTS
Chrome Company HQ Building
© Courtesy of JYA-RCHITECTS
Chrome Company HQ Building
© Courtesy of JYA-RCHITECTS
Chrome Company HQ Building
© Courtesy of JYA-RCHITECTS
Chrome Company HQ Building
© Courtesy of JYA-RCHITECTS
Chrome Company HQ Building
© Courtesy of JYA-RCHITECTS
Chrome Company HQ Building
© Courtesy of JYA-RCHITECTS
Chrome Company HQ Building
© Courtesy of JYA-RCHITECTS
Chrome Company HQ Building
© Courtesy of JYA-RCHITECTS
Chrome Company HQ Building
© Courtesy of JYA-RCHITECTS
Chrome Company HQ Building
© Courtesy of JYA-RCHITECTS
Chrome Company HQ Building
© Courtesy of JYA-RCHITECTS
Chrome Company HQ Building
© Courtesy of JYA-RCHITECTS
Chrome Company HQ Building
© Courtesy of JYA-RCHITECTS

Related you may like