Carapace is a term that refers to the hard shell that protects the bodies of animals, such as crustaceans and turtles, primarily in the biological context. It is one of the important defenses each living thing acquired during its evolution, and it protects its body from external threats and safely wraps up important organs inside. The carapace of crustaceans is a hard exoskeleton that covers the head and chest, consisting of chitin, which protects the body from physical damage or predators.
During the breakaway process, a new carapace is formed, and it also protects internal organs and prevents water loss from the external environment. The turtle also has a carapace that consists of a shell, and a shell in which the spine and ribs are fused, contributing to body temperature regulation and body protection. Even in spiders and scorpions, the carapace has a hard plate structure that covers the head and chest, protecting it from the external environment and providing a body support structure.
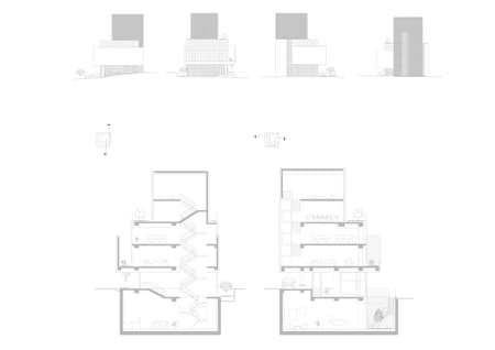
The project was started in a quiet residential area in Cheongdam-dong, Seoul, based on this very concept of carapace. The land located between the dense residential area and the apartment opposite needed an architectural carapace that could block out visual interference and provide users with a safe and comfortable space. This building interacted with the surroundings in different parts, thereby creating an architectural carapace close to human life.



















