An existing 40 year old office building is stripped back to its structure and completely reimagined for the present. The original massing logics are recovered and emphasized. What used to be a confusing and run-down muddle of geometric clashes is now untangled and rearticulated as if the building is composed of twelve separate buildings, each with its own cladding logic and interior atmosphere. At the front, the building adopts a more subdued material expression, with subtle colour variations of white, grey, black, and gold. A new curtain wall that covers the tallest front volume is coupled with generous cast-in-place terrazzo steps, clearly marking the front entrance. At the rear, the colour palette become more playful. The elevator volume is clad in pale turquoise tiles, the main staircase volume is painted in stripes of black and white and complemented with yellow windows, the service core volume is rendered in pink while the open office spaces are clad in blue metal panels. Splashes of colour are distributed throughout the building, both indoors and outdoors.
The building is reoriented to take advantage of its location adjacent to a natural park, with new large openings cut into the existing solid walls to open up views but also to bring in more natural light and compensate for the low existing ceilings of the building. A green roof and circular pergola crown the top of the building, offering smaller outdoor shaded working spaces as well as a bar and a large event space that encourage new forms of exchange and dialogue. The building incorporates a range of sustainability strategies – high performance insulation and windows, the use of local natural materials, low energy mep systems, charging stations and bike parking, and integrated photovoltaic panels - and achieves the local A+ highest energy efficiency grade.
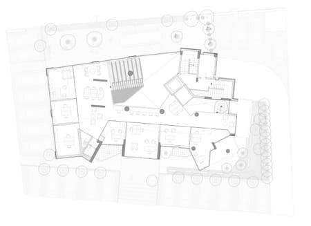
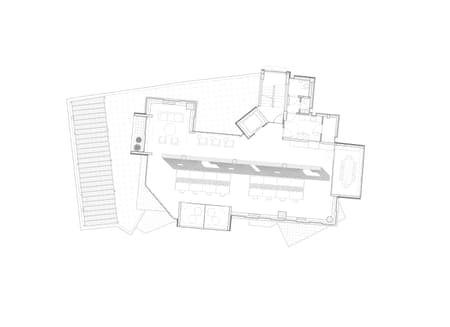
On the interior, the existing black marble flooring of the building has been restored while ceilings have been stripped back to expose the original irregular concrete formwork. This combination of refined and rough materials creates a balance and a common DNA across all floors, letting the custom furniture on each level create its unique identity. This ranges from three large marble seating objects on one floor, to a bright red perforated metal library on another, and to two large criss-crossing hotdesking tables on a third. On the ground floor, a spacious red terrazzo stair that also functions as an amphitheatre for events and projections connects to a light-filled mezzanine level.











































