The Shaoxing Art School, formerly known as the Zhejiang Shaoxing Opera Art Training Class, was completed and opened in 2003, with its current campus located on the west of Second Ring Road in Shaoxing City. Over nearly 20 years of development, the existing campus is no longer able to meet the needs of disciplinary planning and subsequent development, which is the reason for the transformation and expansion. In addition, to promote the reform of "school-league cooperation", the southern triangular area has been newly expropriated to serve as the construction site for the comprehensive building of the recently established Shaoxing Performing Arts Group. Two units operate independently, but they hope for organic integration and resource sharing.
Site. The newly expropriated land completes the southern portion of the site, making the entire land in an inverted triangle shape. The west side of Second Ring Road is the only interface connecting the campus and the city. The east and north sides are surrounded by rivers, and the view eastward is continuous natural mountains, with superior environmental resources in the surrounding area.
On the west side of the existing campus, which is perpendicular to the urban road, are the teaching and training clusters, while on the east side, which is orthogonal to the river, are the living and sports clusters. The campus layout corresponds to non-parallel triangular boundaries, forming a textured grid in two directions. As per the design requirements, all living and sports clusters will be preserved, with only facade renovation. The teaching cluster will have the public teaching building and the core music hall preserved. So, there will be preserved buildings in both directions of the original campus texture grid, which are important leads for the reconstruction of the campus layout.
Reconstruction. Over years of use, the original campus of Shaoxing Art School has formed a stable campus texture and spatial pattern. We respect the traces of time and hope to preserve the memories of the site. Therefore, based on the obvious site texture and multiple design requirements, the reconstruction of the new order of the site appears to be natural.
The main entrance facing the west of Second Ring Road will be preserved. Upon entering the main school gate, a canopy frame will be added to the west side, facing the main square, to strengthen the main position of the music hall. To the south of the square, facing the water, a new opera and music art building will be constructed. To the north, a new administrative complex will be erected. Both buildings will be curved, enveloping the music hall. Further north are the preserved public teaching buildings and newly built dance training buildings. The entire teaching and training cluster layout will be developed on the original texture, restoring and reconstructing the east-west campus axis.
In line with the spatial texture of the living and sports clusters, a small theater will be added to the south side of the gymnasium. This will connect to the newly comprehensive building of the Shaoxing Performing Arts Group in the new land area on the south side. The small theater will serve as a shared functional area between the art school and the Performing Arts Group, fulfilling the common expectations of both units.
The layout of the east and west areas will not simply follow the original campus texture; it will involve a re-echoing and reconstruction of the boundary form and spatial pattern. By reshaping the entrance square, the circular cultural square at the intersection of the two major areas, the north-south pedestrian block, and the infiltration of open spaces between various buildings, the entire campus spatial structure will be organically integrated. This approach further depicts the unique dual-grid spatial characteristics of Shaoxing Art School.
Scenario rendering. Rooted in this place and time, it aims to create this atmosphere and evoke these emotions. While reconstructing the texture and context, functional flow, venue environment, and formal style, more attention should be paid to whether the venue space can resonate with the user's behavior, experience, emotions, and consciousness.
The design includes motor vehicle flow lines on the periphery, ensuring that the entire campus remains inaccessible to vehicles. Squares, vestibules, courtyards, platforms, and other facilities will establish multidimensional connections between different functional areas across the campus, connecting the movements of teachers and students at different time periods, and creating ubiquitous spaces for teaching, communication, and leisure.
The main campus square will be transformed from its originally monotonous tone to a sunken green space surrounded by a circle of steps, offering seats for students. The entrance steps of the front music hall will be enlarged, with a prominent porch added, which not only strengthens the subject image of the music hall but also serves as an outdoor classroom or venue for rehearsal and practice for students majoring in traditional Chinese opera.
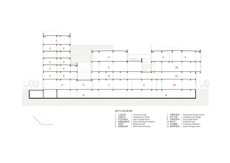
Based on a thorough analysis of the behavior of teachers and students, as well as the teaching mode of secondary vocational schools, the teaching cluster will consist of a vestibule running north-south. The venues for opera and music majors will be co-located in the southern teaching area with the theoretical course classrooms. The teacher studios will be adjacent to the teaching venue, and the teacher and student piano rooms will be shared. The piano rooms and theaters will be set up nearby, which will subtly change students' learning methods, promoting complementarity between students from different majors and stimulating creative inspiration for teachers and students.
Between the teaching cluster and the living and sports cluster lies a north-south pedestrian street, linking dormitories, canteens, classrooms, the gymnasium, teaching buildings, and theaters. Almost all functions of the entire campus are centralized here, facilitating various events such as in-class and after-class activities, rehearsals, performances, dining, and leisure. We hope to see such a scene: during breaks, groups of students rush to their respective classrooms; in their spare time, students chat and play here in groups; in the morning or evening, students majoring in traditional Chinese opera practice in a corner of the roadside. The rehearsal hall of the nearby theater emits a resounding sound of gongs and drums, while the piano room at the southern end plays melodious music... the integration of activities between people and the environment is an important goal of campus space reconstruction.
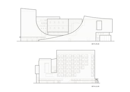
Theater and Performing Arts Complex Building. As an important new building, the theater and performance arts complex building will be the finishing touch in the creation of new campus spaces.
The small theater will stand facing the water, responding to the north-south axis with the western interface being straight; the second floor will be connected to the piano room area in the south teaching area by a platform and corridor. The rusty red perforated panels resemble stage curtains and open towards the central axis block and the direction to the city. From south to east, there will be a curved corner, transitioning from the glass curtain wall wrapped in rods to the vertically divided aluminum panel wall to the east side, becoming the background for the active crowd on the sports ground. The curved roof will be used to balance the towering and rigid form of the stage. Thus, the overall composition logic of the form will be naturally harmonious.
Considering the irregular land area and complex functions, the multidimensional relationship between the city, the campus and nature will be put into account for the performing arts complex building on the south side.
A solid base will be designed to accommodate various equipment, warehouses and auxiliary functional spaces, integrating them with the front ground through wide steps. The museum on the south side, the office on the north side, and the dormitory on the east side of the base will form three ink-colored structures, interspersed with several light-colored functional bodies, sensitively responding to the irregular interfaces in various directions. The inner side will be formed by a glass curtain wall, creating a curved open space like water flowing through the canyon, to accommodate multiple structures such as canteens and rehearsal halls and open up views towards the city and the water surface.
The main structure of the central rehearsal hall will be enveloped in a translucent skin evolved from the traditional Shaoxing lattice window, becoming the visual center. Multiple outdoor platforms of different scales and elevations will serve as extensions of composite functional spaces, providing rich interactive and exchange spaces for the performing arts complex building.
Rebirth. Only minor renovations will be carried out on the preserved buildings, and the excess decorative components on the facade will be removed before being refreshed, while also enhancing the functionality. For example, adding a centralized entrance hall and vestibule at the bottom of the dormitory to facilitate management and use; the original shower room on the east side of the canteen will be turned into a teacher's restaurant, making it easier for teachers and students to access for meals; the gymnasium will be integrated with the theater through the installation of awnings; the concert hall and the public classroom will be combined with newly built buildings, with the addition of vestibule, large steps and outdoor platforms, etc., to naturally integrate the new and old buildings and achieve symbiosis with the new campus.
For a campus that has been around for nearly 20 years, the new designs represent a disturbance and rebalancing of the original order. Through the sorting and reconstruction of local elements, a new sense of place is formed, and a new campus spatial form will be constructed.
In-situ reconstruction for a scenario rebirth. The regional characteristics of Jiangnan Water Town and Drama Town, as well as the humanistic temperament of the art school, have injected special genes into the new campus of Shaoxing Art School. The new campus will be rooted in the original texture and present a trend of natural growth. The new and old buildings are connected to the open space through courtyards, vestibules, platforms, and large steps in multiple dimensions, with multi-level connections and multi-scale sharing. The curved surfaces are smooth and undulating, while the boxy structures are straight and condensed. As if the entire campus is a beautiful melody like mountains and flowing water, following the trend and completing in one go.











































