The designing process began in late spring. After trekking through verdant and thriving mountains, we ultimately arrived at this tranquil valley with an oblique east-west strike. Amidst the undulating hills scatter several residential houses constructed from stone or brick. Behind those houses, we could see cascades of rice fields, above which there were scattered "field stones", constituting a special and beautiful field scenery... That is where the museum is located. As we got closer, we noticed that the base was higher in the south and lower in the north. Two vague streams were converging among the veins of mountains. A century-old camphor tree was growing vibrantly at the center of the base, pointing its sturdy branches stretching toward the north as if it was resisting the slope of the base. Mountains, fields, trees, and stones composed our first impression of the base.
Geological Features. Sanqing Mountain enjoys a widespread reputation both at home and abroad upon becoming a world natural heritage and a world geopark. In its geologic history, it has witnessed 1.4 billion years of stupendous changes, including three major transgressions and multiple geological conformation movements. The unique geotectonic environment that Sanqing Mountain has the most systematically preserved records and most typical exposures of plate collisions between the Yangtze paleo-plate and the Cathaysian paleo-plate, which is at the boundary between the Eurasian Plate and the southeast Pacific Plate. In the meantime, Sanqing Mountain serves as a natural museum to display the formation and evolution of granite micro-landforms to the world. The rock wonders formed by its paleo-plate collisions act as the most striking geological features of Sanqing Mountain.
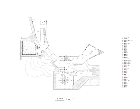
"Writing" on the Ground. 1. Architectural Form. The design of the Sanqingshan Geological Museum is initially inspired by the understanding of its geological origins and the abstraction and composition of its form. This covers the compression and movement of two major tectonic plates, includes the mutual transgressions between mountains and seas, and shows Sanqing Mountain's granite development characterized by dominantly longitudinal and auxiliarily transverse and horizontal joints and broomstick fissures. Therefore, the architectural form exhibits bi-directional compression and develops longitudinal fissures and extensions in strips and blocks. Further, it is cut, separated, transversely shifted, and sheared, depicting the impact of "geological forces" on the form. The architectural form seamlessly integrates the analysis and processing of site topography and runoff patterns. According to the south-north sloping of the site and the gradual changes of the contour line, the building further turns and bends, forming a well-organized half-enclosure with the century-old camphor tree as the core. Furthermore, the building separates the east and west blocks, which echoes the mountain trends with vast vacant space and overhead crossing. The original streams are converged and diverted to the front square and the grand scenic area water system, forming an integral creation.
2. Interior Space. The logic for the generation of the building's architectural form also extends to the creation of its interior space. Visitors start from the gentle slope at the northeast entrance of the site, cross below the luxuriant ancient tree, and then arrive at the museum entrance and see the hall. The overall exhibition route begins here, and visitors can ascend to the first floor from the east section, pass the corridor to the west hall, then descend back to the first floor, and see the exit where you can see the square, the camphor tree, and the mountains afar. The indoor design is based on the "geological movement", giving people the feeling of walking between the rocks of Sanqing Mountain. It combines high and low, dim and bright, and separation and connection. With certain twists and turns, it properly embodies geological movement "images" like extrusions, rheology, cutting, and crossing. In terms of functional layout, the east section of the museum leans more toward the theme of geology and landforms, featuring special exhibition areas for geology, landforms, biodiversity, mountain landscape ecology, etc. The west section is more about temporary exhibitions, planning displays, red themes, research, and other supplementary displays and museum service functions. In this way, it can be open while staying relatively independent to achieve orderly and rational zoning without losing characteristics.
3. External Landscape. The project base adopts the tradition of using local aggregates to construct the wall base and wall body of the original residential houses. Century-old camphor tree is a common species in Jiangnan (regions south of the Yangtze River) villages and often marks the entrance of a village or the center of outdoor events. Meanwhile, the base's original terrace field is also a natural "living" landscape of artificial cultivation. Therefore, the external landscape design of our new building will also preserve the ancient tree as the core. The mountain behind the museum will be in a terrace form with a gentle slope and adopt local rubbles for the enclosure to complete the new recreation of the existing landform and people's lives. Moreover, the theme of water is also a key factor in geological movement (mutual transgression of mountains and seas). The design makes the best of the circumstances, combines the front square and back mountain terrace, and adopts the form of descending "pond field". During wet seasons, it can act as a floodway for the existing streams. During general seasons, it can hold a shallow water body. During dry seasons, the gravel at the bottom will be exposed. In this way, the theme is displayed in a variety of forms. What's more, the forest within the base is utilized and properly transformed into an outdoor exhibition booth, connecting the ancient camphor square, flat bridge below the corridor, cascaded pond field, and mountain trails and forming the outdoor exhibition route. In this way, the museum is built into a pan-museum building without enclosure, better improving the public's immersive experience with the building, nature, and the exhibits. These outdoor exhibition venues and routes will also provide the museum with more space to expand for future openings and collections.
4. Structure and Construction. In terms of structure and construction, the museum mainly adopts reinforced concrete frames and locally cast-in-place reinforced concrete walls. The bridges adopt underhanging steel structures. The building structures exhibit a cracking style. The fissures are enclosed and protected with glass, resembling the lava or sea water during ground motions. They are lighting parts for the traffic, central hall, and other special spaces inside the building in the daytime and become "light through walls" in the nighttime. The solid curtain wall of the outer facade adopts the stones from the same mountain system 40 kilometers away. The surface adopts mechanical grooving plus manual pitching, realizing vertical coarse texture, which is like the re-fortification for the frictions and diastrophism of geological movement. The square and the landscape terrace field also adopt a great amount of local stones. For example, the square adopts bush-hammered stones, the "pond field" adopts gravel for the bottom pavement, and the terrace barricade adopts local rubbles as the material and the "tiger-skin wall" as the construction mode, integrating the new building with the primitive environment.
.jpg?w=450&q=75&dpl=dpl_EbmmVoku4NzJsVTFDmGTu2bK4h1o)






















