E-Isolation, located in the city of Miki in Hyogo Prefecture, Japan, is the first public testing and research facility in the country that is equipped with a full-scale seismic isolation testing system capable of using a measurement method that is the first of its kind worldwide. The facility has been built to enhance earthquake-preparedness measures and develop practical seismic isolation systems in Japan, one of the world's most earthquake-prone countries. With its capability to evaluate the performance of seismic isolation devices, E-Isolation provides an open space where structural researchers, designers, general contractors, manufacturers, building owners, and others can get together. This project has been implemented as a collaboration among industry, academia, and government in order to strengthen Japan's resilience to earthquakes.
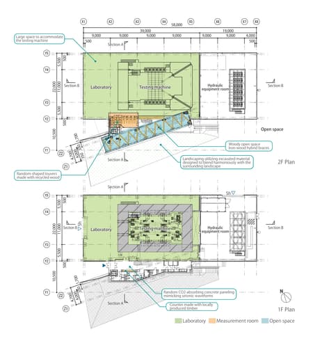
E-Isolation's architectural design is characterized by a unique space configuration that dynamically integrates a laboratory, a measurement room, and an open space by making the open space penetrate the building's structure in a diagonal fashion so as to suit the site conditions. The open space, which has a view of the laboratory, is located on a hill built up with excavated material designed to be the foundation of a testing machine so as to create a structure that blends harmoniously with the surrounding natural landscape.
The interior of the open space is finished with wood from Hyogo Prefecture to make effective use of local resources. The intention here is to create a bright, cheerful, open space where people can concentrate on their activities in a relaxed environment, instead of the cold, spartan open space that would be characteristic of a typical conventional laboratory. As a result, a space that strikes a refreshing contrast to the laboratory and the measurement room has been created. By adopting a playful space concept on a waveform motif inspired mainly by seismic waves, efforts were made to produce a design with diverse features, such as a zigzag configuration of hybrid wood braces, a flooring pattern consisting of eco-friendly concrete panels, and stairway handrails using steel reinforcing bars. Another distinctive feature is the use of reworked wrought-iron signs produced in collaboration with local blacksmithing craftsmen in Miki City, which is famous for its metalworking.
Technological features include a high-precision load measuring system, the first of its kind in the world, that is capable of real-time high-precision measurement. The new system has a steel reaction beam supported by a laminated rubber bearing that may be deemed to be rigid in the vertical direction and free in the horizontal direction, and 14-meter-long unbonded prestressing steel strands anchored at the bottom of the reaction walls that pull down the steel reaction beam. As it is configured in this way, the system performs load measurement through the steel reaction beam by using a load measurement link. To ensure that the measuring system is accurate, it has various features designed to achieve extremely accurate building construction.
The system's eco-friendly features include the use of locally sourced wood and the introduction of soil, wind, greenery, and light. The design also focuses on energy efficiency features such as the use of CO2-absorbing concrete, daylighting, and natural ventilation. The cascade utilization of ventilated air and the adoption of small-capacity, independent air-handling unit systems also contribute to improving energy efficiency.
Many researchers and other interested people visit E-Isolation from within Japan and abroad to make firsthand observations and carry out research activities. Numerous significant achievements in academic research have already been accomplished, and new findings have also been obtained in the dynamic performance evaluation of seismic isolation members in order to contribute to realizing safer buildings.










































