Jean Lamour Gymnasium is a large wooden prism lying on a concrete bed. Its wooden framework inspired by the agricultural vernacular structures can cross long distances, creating vast interior volumes. The building brings acoustic, thermal, and visual comfort, unlike other sports facilities by employing local materials and a qualified workforce.
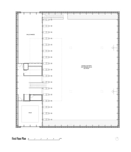
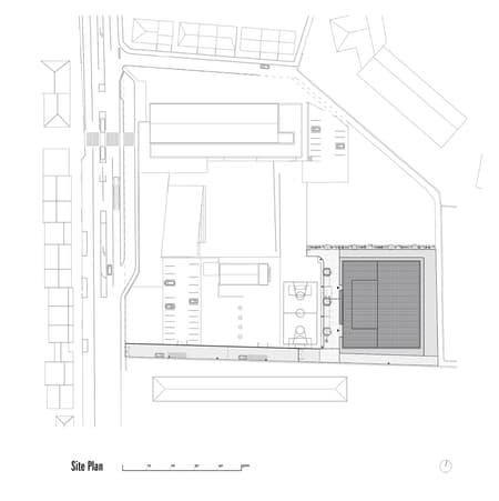
The building is situated in a small sloped plot below the Scarpone Boulevard. To one side there is the middle school, to the other the office building and to the other the plot for the future residential building. The gymnasium is contained inside a 32mx36mx12m volume rhythmed by a grid of 2mx2mx2m that organizes all spaces and the structure.
The plan is composed of technical rooms (locker rooms, restrooms, offices) situated on the side of the building, overhung by two small sports rooms that allow the view of the main sports area from above. The exterior envelope is wrapped by large Douglas boards installed like a fishnet inspired by the interior wooden structure. Each facade has only one big opening.
Constrained to cross 24 meters to create the large interior volume of the main sports court using only massif wood as the main structure, an elaborate wooden framework was designed. Composed of 17 gantries forming lattice beams, the wooden framework is assembled at each node by metal connectors traversing from one end to another. This technique enabled the creation of a rhythmed wooden structure able to cross long distances using only massive wood.
The project of the gymnasium responds to the criteria of a bioclimatic architecture. It takes advantage of its environment and it blends in quite naturally. It was a choice to use natural, solid, pragmatic features inscribed in the architectural concept. In this way, the employment of sophisticated, fragile, and heavy devices for maintenance is minimized. The usage of the building as a gymnasium has increased the exigencies in terms of construction quality.
The main element of the building is wood. Except for the concrete basement, the general structure employed in this construction is composed of simple wooden beams bolted to one another following the principle of a dry construction site, fast and economic. By these meanings, the building presents a very positive balance-sheet concerning its grey energy (the necessary energy for the construction of the building). The day it may be dismantled, its components can perfectly be sorted out and be reemployed in other usages (the notion of overall cost till the end of the building’s life).











































