In Langenlois, 60 minutes west of Vienna, on a gently south-sloping vineyard, the Loisium Hotel and Wine Center celebrates the rich local heritage of an ancient wine vault system. The historic subterranean network, which includes stone passages that are 900 years old, underlies the urban plan of the town. The first two buildings of the SHA designed Loisium Hotel Complex sought to create an analogical relation to the geometry of the cellars, with the Wine Center (2003) embedded within the vineyards and the Hotel (2005) referencing the branching morphology of the vaults above.
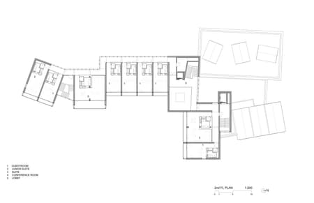
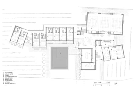
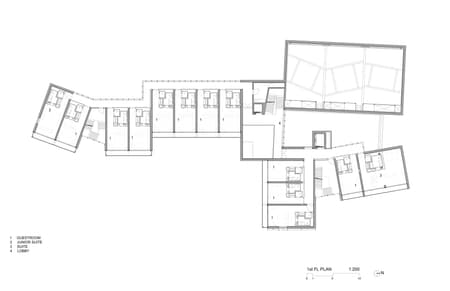
The concept for the 30-room Hotel Expansion “out of the ground” connects to the original vaults via precast vaulted rooms. A reflecting pool at the entry reflects the curved geometry.
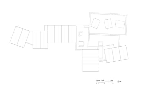
Together, these three elements represent three basic types of architecture: under, in, and over the ground.
The roofs and walls of the expansion building are clad in Rheinzink. The matte natural material is pre-weathered to blend with the landscape and sky. Glass walls at the hotel rooms provide views to the mountains, vineyards and existing Loisium Hotel and Wine Center. Board form exposed concrete walls compliment custom natural wood millwork.
















