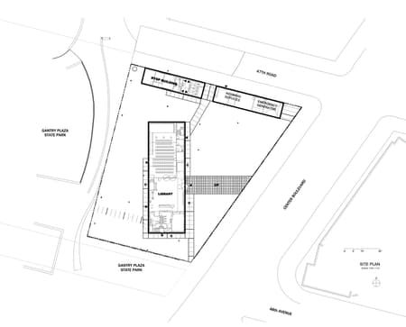
Located on a prominent site along the East River, against the backdrop of rapidly built skyscraper condominiums, the 22,000 square foot Queens Public Library at Hunters Point stands as a public building and public park, bringing community-devoted space to the Long Island City waterfront. Resisting recent trends of incorporating public libraries and much-needed social space within high- end residential towers, the Hunters Point Library stands independently, rising with a minimal footprint on its 32,000 square foot site to offer maximum surrounding green space to the local community and becoming an integrated part of the vibrant public park that lines the river’s edge.
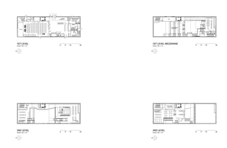
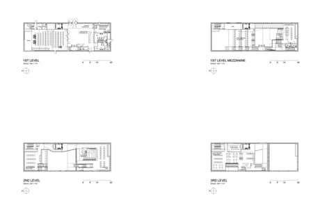
The vertical structure reimagines the traditional library model, providing a diversity of spaces from intimate reading areas to active gathering spaces. The building’s aluminum-painted concrete shell is not just a facade but a load-bearing structure, which omits curtain walls and columns. Sculpted cuts are carved out of the facade, showing the movement of people within and framing expansive views of the Manhattan skyline.
The program's separation into children's area, teen area, and adult area can be read in the sculpted cuts of the east face of the building, one facade opening for each area; yet the programmatic divisions are fluid. Inside, warm bamboo creates an inviting social space, open to the community and offering engaging spaces for all ages. Natural light enters through the large windows from all sides, animating the space.
The digital and the book are merged through the bookshelves and adjacent digital workstations that flow upward along with a series of open stairs. A ground-level auditorium under the main section provides public meeting and events space. The stairs switch back from the mezzanine to the mezzanine, connecting reading areas and concluding in a rooftop reading terrace with views of the city and the river.
While the plan is compact, the building section of the new library is open and flowing to allow for the most energy-efficient design and the greatest amount of public green space on the site. On the east entrance side, the library faces a reading garden bordered by a low park office pavilion with a bosque of ginkgo trees. At night the glowing presence of the Hunters Point Library along the waterfront joins the Pepsi sign and the "Long Island" sign at the old Gantry to become a beacon for this new community place.
.jpg?w=450&q=75&dpl=dpl_EbmmVoku4NzJsVTFDmGTu2bK4h1o)




.jpg?w=450&q=75&dpl=dpl_EbmmVoku4NzJsVTFDmGTu2bK4h1o)

.jpg?w=450&q=75&dpl=dpl_EbmmVoku4NzJsVTFDmGTu2bK4h1o)






.jpg?w=450&q=75&dpl=dpl_EbmmVoku4NzJsVTFDmGTu2bK4h1o)








