&Pierre presents House on Georgian Bay, a 3,780 sq. ft. (350 m²) year-round residence designed to replace a beloved but aging family cottage with a home intended to endure for generations. Grounded in principles of aging in place and long-term livability, the project reinterprets the traditional Georgian Bay cottage through a contemporary architectural lens.
Set along the shoreline, the home draws directly from its surroundings. Inspired by sand, water, and natural stone, the design embraces a vernacular relationship with the landscape, while introducing clarity, refinement, and material restraint.
The architecture and interiors work in tandem to create a seamless dialogue between indoors and out, with expansive glazing framing views of the bay and allowing natural light to shape each space throughout the day.
A restrained material palette reinforces this connection. White oak, locally sourced limestone, plaster, and linen establish a foundation of neutral tones layered with warm accents. Muted coastal hues reflect the shoreline's shifting textures, while natural finishes introduce depth and softness. The result is a home that feels contemporary, yet timeless — calm, tactile, and deeply contextual.
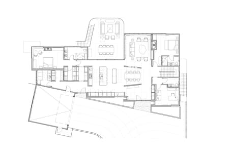
Organized across three levels, the residence was conceived to support intuitive circulation and flexible living. Each area balances architectural precision with warmth, ensuring the home functions as effortlessly in daily life as it does when hosting extended family and friends. Spatial planning prioritizes comfort, accessibility, and year-round performance, without compromising design integrity.


























