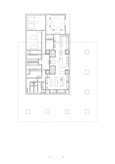
Cornered against a protected forest, on a gentle slope that overlooks a lush botanical garden, there is a bold infrastructure, a mute monument, almost without memory, function and scale. The building is meant to host culinary activities; from intimate, informal dines to large social events. Supported by a generous specialized kitchen totally buried underground, the building challenges the archetype of an open plan.
With a regular formation of sixteen rectangular columns, given their exaggerated thickness, there is inhabitable space among and within each column. This open plan is explicitly characterized into three strata; the lower one, following the natural topography, with a covered amphitheater funneled towards the lower valley; the intermediate one, suspended under a thick platform, with a diagonal symmetry formed by open corner terraces at opposite ends; and the upper one, over the non-directional horizontal platform, with a panoramic view framed in multiple orientations by ten meters tall, obelisk-like, free-standing columns.
The massive columns and slab, in their boldness, promote a sense of enduring presence, of discreet contemplation, of arcane shadows, within an opaque and transparent milieu (the X factor in Nietzsche's words, which remains inaccessible and undefinable for us). Thus, the apparent abstraction of the whole spatial form, in fact, is a deliberate extension of a native feeling, somehow confirming our understanding of architecture as a "second nature".
In as much as the columns remain inexpressive, there is a vacant space, both physical and mental, to be filled. If on the floating salon tables and chairs will configure a regular or extraordinary event, the columns on the lower and upper strata will serve as supports for garlands, candles or canopies, for traditional rituals or lively celebrations. The entire structure is made out of reinforced concrete, with a soft green tint, and dark claddings of oak and terrazzo.








































