Taipei is a modern metropolis that manages to maintain a sense of community and human scale; alongside new glassy tall buildings, there co-exists charming arcaded low rises from the 70s, while the sub-tropical climate allows for a lush greenery to thrive and interweave throughout the urban landscape. The project site is located in Zhishan, part of Tianmu in Shilin district, which has a particularly rich cultural background. It was a gateway for foreign cultures, and still today, it is the neighborhood where most international schools are located.
Residents of Tianmu are proud of this cross-cultural identity and enjoy a slow-living lifestyle that is removed from the bustle of more commercial areas in the city. In this context of Taipei and Zhishan, Neri&Hu’s design intent for a high-end residential building was to embody a timeless aesthetic through the use of tectonic forms and tactile materials.
With setbacks in consideration, the building massing strategy was to hold a strong squared edge on the north corner to maintain a bold presence along the street, while the south side of the building is softened by its saw-toothed footprint. The elevation is simply expressed with a grid of elegantly proportioned columns and beams clad in light gray stone, with an open corner detail to bring some lightness to the expression of the structural framing.
Within each frame of the grid, an inverted catenary arch-shaped screen of copper-toned metal is inserted to enclose balconies and layer upon the glazing behind. Inspired by the many “flower grid” screens found on top of windows in old buildings throughout Taiwan, Neri&Hu reinterprets this recognizable feature on a larger scale with a refined pattern and luxurious material. The two opposing elements of structure and screen are working in harmony to achieve a delicate balance between masculine and feminine, historic and modern, cool and warm, rational and expressive.
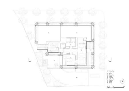
For the design of the interior spaces, Neri&Hu continues the strategy of archetypal forms and rich materials. Upon entering, one is greeted in a double height arched space clad in warm gray terrazzo, a material which continues into the mailbox area, lift lobby, and lounge space that is highlighted by a custom bronze and hand-blown glass pendant installation. Black walnut timber furniture pieces are complimented with bronze details and neutral textiles.
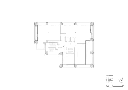
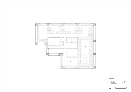
On the second floor a small library overlooks the lounge and also features a wide arching proportion, reminiscent of the arcades found in old buildings. Rooftop amenities include a gym and various outdoor spaces, such as an outdoor kitchenette and events area, small seating nooks, a yoga platform, and a pet area—all surrounded by lush plantings, with views outward towards majestic Yangming mountain and beyond.




















