Sepand House of Culture and Art represents the revival of a valuable residence from the 1960s, originally designed by Dr. Paknia. Once the home and medical office of Dr. Esmaeilzadeh, a cardiologist, the house has now been transformed from a place dedicated to physical care into a platform for culture and community.
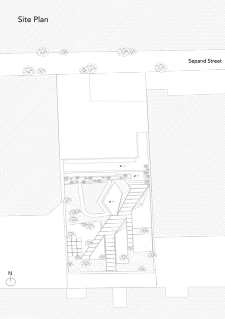
The original structure consisted of three linear parts: the main building, a courtyard, and the servants' quarters. In the process of regeneration, the courtyard became the heart of the project. Folded and fractured concrete slabs were placed here as seating platforms, inviting gathering and dialogue. These levels, metaphors for the layers of time and human experience, create diverse spatial qualities—from solitude and intimate conversation to larger collective events—reflecting the social variety of the users.
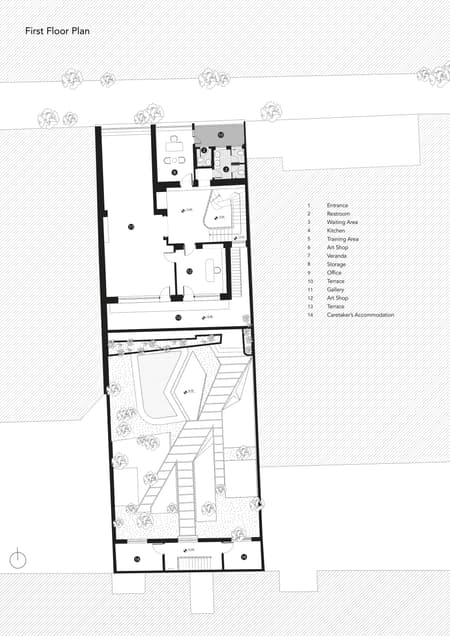
The main building was preserved with minimal fundamental changes. Its interior spaces were adapted flexibly to host new functions such as a gallery, classrooms, and a small cinema. This approach demonstrates that regeneration here is not nostalgic reconstruction but rather a reinterpretation of spatial memory.
The smaller servants' building, once worn and aged, was wrapped in a metal mesh that supports climbing plants. This secondary skin does not erase the past but connects it to the future through a living process.
Within the complex, the gallery was relocated to the first floor to offer a more open and adaptable venue for audiences. Meanwhile, the ground-floor reception hall, with its existing level differences, was turned into an opportunity: a dynamic, multilayered stage for live performances, film screenings, and workshops. Thus, the spaces gained a new character—somewhere between past and present—where collective life is reimagined through contemporary cultural experiences.
Originally a villa from the 1950s, the building has retained its architectural integrity despite decades of urban transformation. Villa Street was once lined with similar houses, from which only a few remain today. Among them, this house stands out as one of the most notable and influential. Its significance lies not only in age or survival but in evoking layers of architectural history and urban identity.
The design approach, therefore, focused on preserving the structure, reinforcing its spatial integrity, and reinterpreting its essential values. In doing so, the project safeguards artistic details and historical authenticity while enabling the house to play an active role once again in the contemporary life of the city.
































