"The regional character is a property of any authentic architecture." — Christian Norberg-Schulz
Casa Chave is a weekend home designed for a couple: she, an illustrator and the project initiator; he, an engineer. Along with their two small children, they share a deep sensitivity for design and energy efficiency.
The house is located in the city of Puerto Varas, in southern Chile, in a developing residential neighborhood where houses of very diverse shapes and styles have recently been built. The lot, with access from its western side, has a gentle slope to the east, from where distant views open towards the Maullín River forest.
The request was to design a 150 m² house, reutilizing the laurel wood from an old shed acquired by the family, built in the 1950s. As a starting point, we conducted an inventory of the available material, with the goal of rescuing and valuing the old structure from a more contemporary perspective.
The wood used for both the structure and the interior cladding corresponds to the original laurel from the shed. In the facades, local larch shingles were recovered, left untreated and unpainted to preserve their natural character.
Heating is resolved through an aerothermal system, which increases the thermal mass of the building through underfloor heating beneath cement tile flooring. At the same time, the old laurel floors were restored, harmoniously integrating them into the new design.
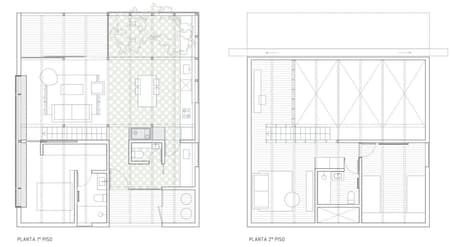
Intimate in scale, the interior spaces communicate with each other through a compact layout, without the need for hallways, in a sequence of rooms of varying sizes, whose uses are defined by their relationship to the exterior, whether it's the distant view of the hills, the sight of tree tops, or direct access to the land.
A project that integrates architecture, restoration, and sustainability, in a respectful dialogue between the pre-existing and the new.







.jpg?w=450&q=75&dpl=dpl_EbmmVoku4NzJsVTFDmGTu2bK4h1o)
.jpg?w=450&q=75&dpl=dpl_EbmmVoku4NzJsVTFDmGTu2bK4h1o)



.jpg?w=450&q=75&dpl=dpl_EbmmVoku4NzJsVTFDmGTu2bK4h1o)